熊谷市
熊谷市榎町97番1
-
ハウス
メーカー 
- 販売価格
-
2,880万円建物価格 660万円 / 土地価格 2,220万円
- 交通
-
- 秩父鉄道本線「上熊谷」駅より徒歩8分(630m)
- JR上越新幹線 JR北陸新幹線 JR高崎線 湘南新宿ライン高海 秩父鉄道本線「熊谷」駅より徒歩19分(1450m)
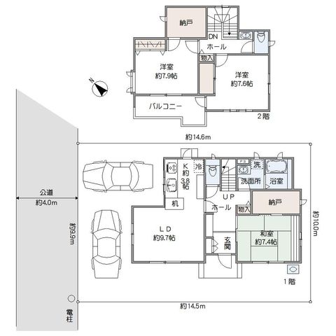
- 土地面積
- 142.14m²
- 間取り
- 間取:3LDK+S 間取詳細:3LDK+2S(納戸)
- 建物面積
- 104.00m²
- 築年月
- 2003年3 月
- 物件PR
- 積水ハウス施工 エム・シャントア バリュー
駐車場2台可(車種制限あり)
秩父鉄道本線「上熊谷駅」徒歩8分の立地です
南小学校徒歩4分、荒川中学校徒歩11分
2025年9月リフォーム済み
■リフォーム内容■
1階2階トイレ交換
1階洗面化粧台交換
キッチン・和室をLDKへ変更工事
キッチン交換
ユニットバス交換
1階和室畳表替え
2階和室から洋室へ変更工事
… 続きを見る
熊谷市
熊谷市新堀
-
ハウス
メーカー 
- 販売価格
-
2,980万円建物価格 1,380万円 / 土地価格 1,600万円
- 交通
-
- JR高崎線「籠原」駅から徒歩22分
- JR高崎線「深谷」駅から徒歩47分
- 土地面積
- 190.61m²
- 間取り
- 4LDK
- 建物面積
- 105.16m²
- 築年月
- 2010年12 月
- 物件PR
- ミサワホーム施工
土地面積:190.61平米(約57坪)
物件おすすめポイント
■木質パネル工法を採用した住まい
■駐車スペース2台分(車種による)
■南東向きLDKは約18帖
■シューズクローク付
■バルコニーは約4帖
空家ですのでお気軽にご内見いただけます
事前にご連絡いただきますようお願い致します
【周辺施設】
■篭原若竹幼稚園徒歩27分 籠原小… 続きを見る
このマークのある物件は、安心R住宅です。
安心R住宅とは、耐震性等国土交通省が定めた要件に適合した既存住宅のことです。
※詳細は、一般社団法人 優良ストック住宅推進協議会までお問合せください。


















