白岡市
白岡市小久喜 294-5
-
ハウス
メーカー 
- 販売価格
-
4,780万円建物価格 2,460万円 / 土地価格 2,320万円
【フラット35】 適合物件
- 交通
-
- 湘南新宿ライン宇須「白岡」駅徒歩20分
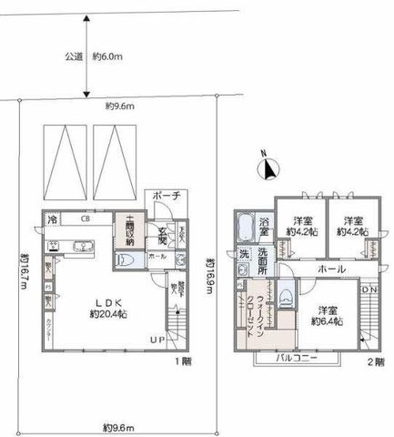
- 土地面積
- 271.62m²
- 間取り
- 4LDK + 書斎+ファミリークローゼット
- 建物面積
- 161.17m²
- 築年月
- 1996年11 月
- 物件PR
- ★仲介手数料不要(当社売主物件)
ワークスペースと豊富な収納を備えた【4SLDK】 ◇ 1階2階共に階段を中心とした回遊動線で住み心地の良い住まい
◆存在感のある約49坪のゆとりある建物(1階天井高約2.6m)
◆階段を中心とした回遊動線で家事効率もUP
◆約23帖超・南東向きであたたかな陽光が注ぐLDK
◆室内干しスペースを確保した、広めのランドリースペース
◆私道突き… 続きを見る
白岡市新白岡5丁目3番15
-
ハウス
メーカー 
- 販売価格
-
5,780万円建物価格 3,000万円 / 土地価格 2,780万円
【フラット35】 適合物件
- 交通
-
- JR東北本線 湘南新宿ライン宇須「新白岡」駅より徒歩4分(300m)
- 土地面積
- 162.89m²
- 間取り
- 間取:3LDK 間取詳細:3LDK+WIC
- 建物面積
- 99.50m²
- 築年月
- 2020年11 月
- 物件PR
- ◆積水ハウス施工のスムストック◆
○JR湘南新宿ライン宇都宮線「新白岡」駅 徒歩約4分!
○令和2年11月築!
○駐車場2台分あり!(車種による)
■瓦一体型太陽光発電システム4.823kw搭載
■積水ハウス株式会社保証:新築時から30年継承可能
■長期優良住宅
■ZEH仕様住宅
■約20.4帖のLDK
■陶版外壁ベルバーン採用
南埼玉郡宮代町
南埼玉郡宮代町東姫宮2丁目
-
ハウス
メーカー 
- 販売価格
-
2,480万円建物価格 1,190万円 / 土地価格 1,290万円
- 交通
-
- 東武伊勢崎・大師線「姫宮」駅徒歩6分
- 土地面積
- 198.82m²
- 間取り
- 4LDK+S(納戸)
- 建物面積
- 122.68m²
- 築年月
- 2002年9 月
- 物件PR
- ~~地震に強いセキスイハイム施工 軽量鉄骨造ユニット工法住宅【ドマーニ】~~
☆60年・長期サポートシステム継承可能(5年毎の無償点検)
☆2022年10月に全体塗装済 メンテナンスの行届いた建物です
☆「土地60坪・建物37坪」 空間にゆとりのある物件です
☆「姫宮駅」徒歩6分 交通のアクセスも良い立地
☆近くには広い公園もあり、子育てにも適した立地です
☆リフォー… 続きを見る
このマークのある物件は、安心R住宅です。
安心R住宅とは、耐震性等国土交通省が定めた要件に適合した既存住宅のことです。
※詳細は、一般社団法人 優良ストック住宅推進協議会までお問合せください。






















