東京都
府中市北山町2丁目
-
ハウス
メーカー 
- 販売価格
-
5,980万円建物価格 720万円 / 土地価格 5,260万円
- 交通
-
- 南武線「谷保」駅 徒歩20分
- 中央本線「西国分寺」駅 バス12分京王電鉄バス「西原町北」停歩5分
- 武蔵野線「西国分寺」駅 バス12分京王電鉄バス「西原町北」停歩5分
- 土地面積
- 156.24m²
- 間取り
- 3LDK
- 建物面積
- 91.23m²
- 築年月
- 2004年8 月
- 物件PR
- ◆地震・火災に強い 旭化成ホームズ(株)施工のへーベルハウス◆
◆屋上利用+庭で自宅アウトドアを楽しめる家◆
■ 新府中街道から一本入った閑静な住宅街です。
■ 南側に庭があり、日当たり・通風良好です。
・ 本物件建築時資料、メンテナンス資料を保管しております。
・ 60年点検システム、継承できます。
■ 売主にて室内ハウスクリーニング実施済です。
府中市小柳町5丁目
-
ハウス
メーカー 
- 販売価格
-
7,500万円建物価格 740万円 / 土地価格 6,760万円
【フラット35】 適合物件
- 交通
-
- 西武鉄道多摩川線「競艇場前」駅より徒歩4分(320m)
- 京王電鉄京王線「武蔵野台」駅より徒歩20分(1600m)
- 土地面積
- 274.68m²
- 間取り
- 2LDK+3LDK
- 建物面積
- 172.40m²
- 築年月
- 1997年2 月
- 物件PR
- ◆積水ハウス(株)施工 軽量鉄骨造
◆2LDK+3LDK
◆2世帯住宅としても利用可能です
◆西武鉄道多摩川線『競艇場前駅』徒歩4分
◆京王線『武蔵台』駅 徒歩20分も利用できます
◆分筆前のため、面積の増減相談可能です
町田市小山ヶ丘5丁目
-
ハウス
メーカー 
- 販売価格
-
4,950万円建物価格 1,661万円 / 土地価格 3,289万円
- 交通
-
- 京王相模原線「多摩境」駅から徒歩12分
- 京王相模原線「多摩境」駅からバス3分「響きの丘」から徒歩2分
- JR横浜線「橋本」駅から徒歩24分
- 土地面積
- 112.06m²
- 間取り
- 3LDK
- 建物面積
- 98.12m²
- 築年月
- 2005年9 月
- 物件PR
- ◆安心の三井ホーム施工
◆多摩境駅徒歩12分
◆利便性の高い3LDK
■三井ホーム独自の2×4工法=モノコック構法を採用。高い耐震性と気密性で、建物の変形や倒壊を防ぎ、外気の影響を受けにくい省エネルギーの建物です。
■京王相模原線「多摩境」駅 徒歩12分
京王相模原線「多摩境」駅 バス3分「響きの丘」バス停 徒歩2分
JR横浜線「橋本」駅 徒歩24分
JR横浜… 続きを見る
町田市三輪緑山1丁目
-
ハウス
メーカー 
- 販売価格
-
4,980万円建物価格 1,156万円 / 土地価格 3,824万円
- 交通
-
- 小田急小田原線「鶴川」駅から徒歩23分
- 小田急小田原線「鶴川」駅からバス10分「ゆりの木通り」から徒歩1分
- 土地面積
- 193.00m²
- 間取り
- 4LDK
- 建物面積
- 112.82m²
- 築年月
- 2002年1 月
- 物件PR
- ◆安心の三井ホーム施工
◆鶴川駅徒歩23分
◆収納充実の4LDK&吹抜け有り
■小田急小田原線「鶴川」駅 徒歩23分/バス10分(神奈川中央交通 「ゆりの木通り」バス停より徒歩1分)
■野村不動産旧分譲地
■T字路正面につき日当たり良好で開放感があります♪
■三井ホーム独自の2×4工法=モノコック構法を採用。高い耐震性と気密性で、建物の変形や倒壊を防ぎ、外気の影響を受… 続きを見る
町田市金井ヶ丘2丁目
-
ハウス
メーカー 
- 販売価格
-
5,180万円建物価格 795万円 / 土地価格 4,385万円
【フラット35】 適合物件
- 交通
-
- 小田急電鉄小田原線「玉川学園前」駅徒歩17分
- 土地面積
- 277.20m²
- 間取り
- 4LDK + LDK+S(納戸)
- 建物面積
- 131.65m²
- 築年月
- 2001年9 月
- 物件PR
- \価格変更しました/
【ヤマダホームズ】スムストック物件 町田市金井ヶ丘2丁目、中古住宅販売中!
1階2階にそれぞれLDKのある家♪(4LLDDKK+S)
【建物の魅力】
・1階LDKは約12帖、2階LDKは約20帖
・洗面台とトイレも各階にそれぞれ有
・1階は回遊動線のため毎日の家事効率がアップ
・全居室に収納+大容量の1階納戸
・南向きのお庭とバルコニーで過ごす贅沢時間
【… 続きを見る
町田市能ヶ谷5丁目
-
ハウス
メーカー 
- 販売価格
-
6,490万円建物価格 3,000万円 / 土地価格 3,490万円
- 交通
-
- 小田急電鉄小田原線「柿生」駅徒歩11分
- 土地面積
- 150.01m²
- 間取り
- 3LDK+S(納戸)
- 建物面積
- 138.34m²
- 築年月
- 1995年4 月
- 物件PR
- パナソニックホームズ施工の軽量鉄骨造 瑕疵保険付き
平成7年4月築
前面道路幅員約5.0mの解放感のある立地
角地の閑静な住宅街
カースペース有
地下室付き
リフォーム済み(2025年8月29日完成)
■リフォーム内容
【外部】・外壁塗装・屋根塗装・シーリング打ち替え・玄関ドア交換・雨戸交換・網戸張替・バルコニー防水・伐採
【内部】・床上貼り・HEPA換気システム新設・パナソニック製… 続きを見る
小金井市前原町4丁目
-
ハウス
メーカー 
- 販売価格
-
6,480万円建物価格 3,170万円 / 土地価格 3,310万円
【フラット35】S 金利プランA適合物件
- 交通
-
- JR中央線「武蔵小金井」駅からバス11分「前原交番西」から徒歩5分
- 京王線「府中」駅からバス13分「前原交番西」から徒歩5分
- 土地面積
- 102.25m²
- 間取り
- 2LDK
- 建物面積
- 99.20m²
- 築年月
- 2018年3 月
- 物件PR
- ◆三井ホーム施工・2×6構法
◆2LDK⇒3LDK化可能(間仕切壁・ドア施工費は別途)
◆安心の建物30年保証システム無償継承可(基礎・構造躯体・雨漏り)
◆三井ホーム標準仕様「長期優良住宅(新築)」認定
◆太陽光発電・蓄電池・エコワン給湯器搭載で
高効率・低ランニングコスト・災害に強い住まい
◆進化したプレミアムモノコック構法
~2×6壁(2×4壁の約1.6倍厚)… 続きを見る
小金井市貫井北町2丁目
-
ハウス
メーカー 
- 販売価格
-
1
億
4,800万円建物価格 2,660万円 / 土地価格 1億
2,140万円
- 交通
-
- 中央線・武蔵小金井駅 北口 徒歩10分
- 土地面積
- 183.79m²
- 間取り
- 5LDK+S(納戸)
- 建物面積
- 145.56m²
- 築年月
- 2013年6 月
- 物件PR
- -物件概要-
○住友林業(株)施工
○2013年6月築
○「武蔵小金井駅」徒歩10分
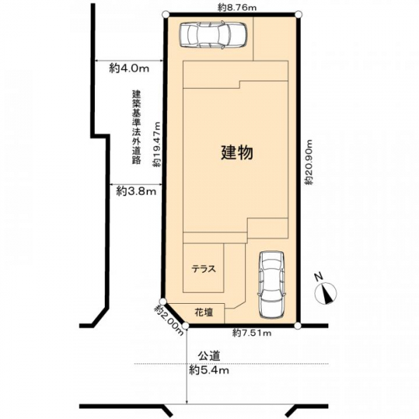
〇土地55坪、建物44坪
○南側約5.4m公道×西側約3.8m通路(建築基準法外)
○駐車2台可(車種による)
○太陽光発電、蓄電池搭載
○間取り:5LDk+S(書斎)
○約19帖のリビングダイニング・キッチンに床暖房
○建物保証継承可能、長期優良住宅
〇1階は防犯Low-eガ… 続きを見る
このマークのある物件は、安心R住宅です。
安心R住宅とは、耐震性等国土交通省が定めた要件に適合した既存住宅のことです。
※詳細は、一般社団法人 優良ストック住宅推進協議会までお問合せください。









































