福岡県
福岡市西区小戸3丁目
-
ハウス
メーカー 
- 販売価格
-
6,480万円建物価格 700万円 / 土地価格 5,780万円
- 交通
-
- 筑肥線・姪浜駅 北口 徒歩18分
- 筑肥線・下山門駅 徒歩17分
- 土地面積
- 233.68m²
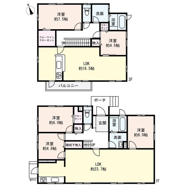
- 間取り
- 4LDK+S(納戸)
- 建物面積
- 129.28m²
- 築年月
- 1996年4 月
- 物件PR
- ■住友林業施工の家が小戸エリアに登場
■南向き宅地
■4LDK+納戸(3帖)
■土地70.6坪 建物39.1坪
■駐車スペースあり
■今宿姪浜線乗合バス 小戸中央バス停まで徒歩1分
~周辺環境~
■内浜小学校(約1050m)
■内浜中学校(約1450m)
■フードウエイ小戸店(約165m)
■ホームセンターコーナンめいのはま店(約310m)
■ありた幼稚… 続きを見る
福岡市城南区堤団地 40-13
-
ハウス
メーカー 
- 販売価格
-
4,480万円建物価格 2,286万円 / 土地価格 2,194万円
- 交通
-
- 福岡市七隈線「福大前」駅徒歩29分
- 土地面積
- 172.73m²
- 間取り
- 5LDK
- 建物面積
- 115.39m²
- 築年月
- 2016年1 月
- 物件PR
- 災害に強いセキスイハイムが手掛ける軽量鉄骨住宅です!断熱性・耐震性ともに優れており、タイル外壁・快適エアリー・太陽光発電システム搭載の高性能住宅です。小中学校が非常に近く、子育て世代に特にお勧めです♪福岡市内でマイホーム検討中の方、十分な部屋数・お庭・駐車場をお探しの方、一生涯住み続けることができるしっかりしたお家をお探しの方は是非お気軽にお問合せください!
福岡市城南区長尾4丁目
-
ハウス
メーカー 
- 販売価格
-
7,150万円建物価格 1,350万円 / 土地価格 5,800万円
- 交通
-
- 福岡市七隈線「七隈」駅 徒歩28分
- 土地面積
- 309.30m²
- 間取り
- 4SLDK
- 建物面積
- 140.35m²
- 築年月
- 2005年9 月
- 物件PR
- ◆耐震性・耐久性に優れたヘーベルハウスのお住まいです
◆北西角地!
◆駐車場2台分有(内1台カーポート)
◆開放感のあるリビングです
◆2階10.6帖の洋室は2部屋に分けられます
◆室内きれいにお使いです
◆床暖房(リビング・ダイニング)
◆エネファーム設置(2017年12月)
★ストックヘーベルハウスのおすすめポイント★
①60年以上耐用の構造躯体
②耐火・断熱・耐久・遮音・調湿… 続きを見る
福岡市早良区干隈6丁目
-
ハウス
メーカー 
- 販売価格
-
5,990万円建物価格 2,890万円 / 土地価格 3,100万円
【フラット35】S 金利プランA適合物件
- 交通
-
- 地下鉄七隈線・野芥駅 1番口 徒歩7分
- 地下鉄七隈線・賀茂駅 2番口 徒歩11分
- 地下鉄七隈線・梅林駅 1番口 徒歩17分
- 土地面積
- 199.59m²
- 間取り
- 5LDK
- 建物面積
- 158.57m²
- 築年月
- 2006年2 月
- 物件PR
- ■平成18年2月築 ■3LDK+2LDK 二世帯住宅として利用可能。
■敷地面積約60.3坪 ■延床面積約47.9坪
■駐車スペース2台可(車種による)
■福岡市地下鉄 七隈線 「野芥駅」徒歩7分
※スムストック住宅とは
原則として、50年以上のメンテナンスプログラムを持ち、且つ一定の耐震性能を
有し、住宅履歴データを保有する安心の住まいです。
~設備・… 続きを見る
久留米市東櫛原町
-
ハウス
メーカー 
- 販売価格
-
3,880万円建物価格 360万円 / 土地価格 3,520万円
- 交通
-
- 西鉄天神大牟田線「櫛原」駅 徒歩6分
- 土地面積
- 427.65m²
- 間取り
- 6SLDK
- 建物面積
- 148.69m²
- 築年月
- 1991年10 月
- 物件PR
- ・耐震・耐火・耐久性に優れたヘーベルハウスのスムストック住宅
・西鉄大牟田線「櫛原」駅より徒歩約6分の立地
・広々敷地に6SLDKの建物
・続き和室のある間取り
・オール電化住宅です
・2025年5月 全室クロス貼替、1~2階トイレ・洗面所床貼替
\ストックヘーベルハウスのおすすめポイント/
①60年以上耐用の構造躯体
②耐火・断熱・耐久・遮音・調湿に優れたALCコンクリート=ヘー… 続きを見る
久留米市花畑2丁目10番11
-
ハウス
メーカー 
- 販売価格
-
9,000万円建物価格 2,900万円 / 土地価格 6,100万円
- 交通
-
- 西鉄天神大牟田線「花畑」駅より徒歩5分(350m)
- 西鉄天神大牟田線「西鉄久留米」駅より徒歩9分(650m)
- 土地面積
- 275.06m²
- 間取り
- 間取:3LDK 間取詳細:3LDK
- 建物面積
- 163.22m²
- 築年月
- 2005年5 月
- 物件PR
- 見学のご相談はお気軽にお問い合わせください。
積水ハウスリフォーム(株)によるリフォーム物件
リフォーム内容(2025年11月リフォーム完了)
〇間取変更;5LDK+S(納戸)→3LDK
〇取替:キッチン、1F・2Fトイレ、洗面化粧台、ユニットバス
〇壁・天井クロス貼替:全室
〇フローリング張替:LDK、洋室(1)・(2)・(3)、1・2Fホール、ユーティリティ
… 続きを見る
このマークのある物件は、安心R住宅です。
安心R住宅とは、耐震性等国土交通省が定めた要件に適合した既存住宅のことです。
※詳細は、一般社団法人 優良ストック住宅推進協議会までお問合せください。









































