滋賀県
京都府
兵庫県
神戸市東灘区住吉台
-
ハウス
メーカー 
- 販売価格
-
8,264万円建物価格 4,260万円 / 土地価格 4,004万円
- 交通
-
- JR東海道本線「住吉」駅からバス10分「住吉台県住前」から徒歩2分
- 阪神電鉄本線「御影」駅からバス20分「渦森橋」から徒歩7分
- 土地面積
- 497.59m²
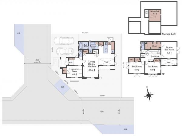
- 間取り
- 4LDK
- 建物面積
- 173.79m²
- 築年月
- 2025年1 月
- 物件PR
- 三井ホームの注文住宅
・ツーバイフォー工法
・全館空調システム
・高台につき日当たり良好
・2階洋室から海を臨む眺望(天候による)
・LD天井高約2.6m
・駐車場3台可(車種による)
・収納充実(エントランスクローク・小屋
裏収納・ウォークインクロゼット)
このマークのある物件は、安心R住宅です。
安心R住宅とは、耐震性等国土交通省が定めた要件に適合した既存住宅のことです。
※詳細は、一般社団法人 優良ストック住宅推進協議会までお問合せください。







































