埼玉県
川越市伊勢原町4丁目
-
ハウス
メーカー 
- 販売価格
-
3,890万円建物価格 690万円 / 土地価格 3,200万円
- 交通
-
- 川越線「的場」駅徒歩18分
- 東武鉄道東上線「鶴ヶ島」駅バス乗車12分、近隣センター停留所より徒歩3分
- 土地面積
- 208.00m²
- 間取り
- 5LDK
- 建物面積
- 122.16m²
- 築年月
- 1994年3 月
- 物件PR
- 地震に強いパナソニックホームズの中古住宅
軽量鉄骨造の耐震住宅です
工法は大型壁パネル工法、それぞれの壁を鉄骨で強固にし、それをブロック体にすることで、連続して起こる巨大地震に対して耐えられる構造体になっています
優れた防錆性能で鉄骨が錆びにくくなっています
台風の多い沖縄での建築実績も多数あります
以下のリフォーム工事をしています
2010年 バスルーム交換、洗面床貼替え、1階トイ… 続きを見る
八潮市大字大曽根
-
ハウス
メーカー 
- 販売価格
-
3,790万円建物価格 1,336万円 / 土地価格 2,454万円
- 交通
-
- つくばエクスプレス「六町」駅徒歩27分
- 土地面積
- 144.40m²
- 間取り
- 3LDK+S(納戸)
- 建物面積
- 130.05m²
- 築年月
- 1999年12 月
- 物件PR
- ◆パナソニックホームズ株式会社施工物件
◆軽量鉄骨造大型パネル構造で地震に強い耐震構造
◆オール電化(IH+エコキュート)
◆1年間の瑕疵保険付き
◆東南の角地で日当たり良好
◆計画的な配置の収納
◆駐車場2台並列可能
◆2012年9月外壁シーリング工事
◆2019年4月トイレ交換工事
◆2019年6月キッチン交換工事
◆2019年10月屋根塗装・バルコニー防水工事
◆2020年10… 続きを見る
千葉県
東京都
千代田区富士見2丁目
-
ハウス
メーカー 
- 販売価格
-
6
億
8,800万円建物価格 3,800万円 / 土地価格 6億
5,000万円
- 交通
-
- 総武・中央緩行線「飯田橋」駅徒歩4分
- 東京地下鉄有楽町線「飯田橋」駅徒歩5分
- 東京都大江戸線「飯田橋」駅徒歩5分
- 土地面積
- 108.61m²
- 間取り
- 8LDK + LDK+SS
- 建物面積
- 173.54m²
- 築年月
- 2005年9 月
- 物件PR
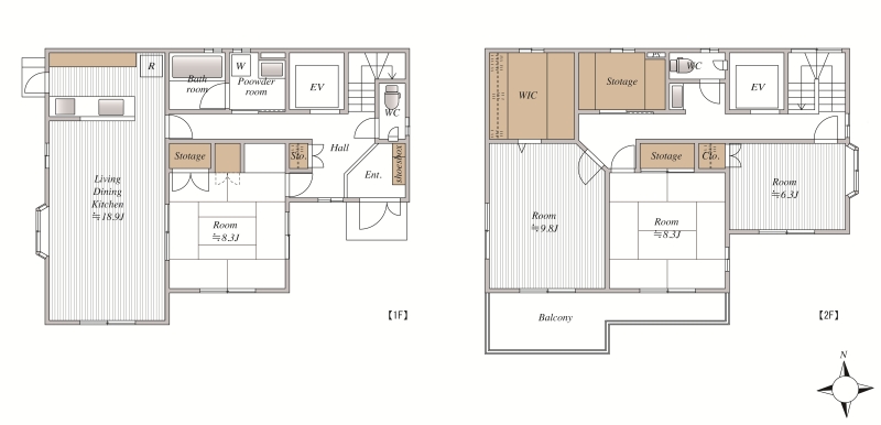
- 【物件のおすすめポイント】
■5LDK+S(1F.2F)・3LDK+S(2F.3F)の二世帯住宅。
■一世帯に間取りを変更するリフォームプラン有り(別途費用要)
■3階LDKに隣接したルーフバルコニー。洗濯物干しや屋外でのくつろぎなど、様々な使い方が可能
■オール電化住宅
■南西・南東角地につき、日当たり良好
【周辺環境のおすすめポイント】
◇◆5沿線利用可能な立地で、徒歩1分圏内… 続きを見る
足立区東和1丁目
-
ハウス
メーカー 
- 販売価格
-
6,280万円建物価格 1,997万円 / 土地価格 4,283万円
- 交通
-
- 千代田・常磐緩行線「綾瀬」駅徒歩16分
- 千代田・常磐緩行線「亀有」駅徒歩16分
- 千代田・常磐緩行線「綾瀬」駅バス乗車5分、東綾瀬小学校前停留所より徒歩2分
- 土地面積
- 83.80m²
- 間取り
- 1LDK+S(納戸) + S
- 建物面積
- 91.30m²
- 築年月
- 2016年1 月
- 物件PR
- 【交通アクセス】
・常磐緩行線「亀有」駅まで徒歩16分
・常磐緩行線「綾瀬」駅まで徒歩16分
徒歩10分圏内には、マルエツ東和店、セブンイレブン足立東和1丁目店、ドラッグセイムス東綾瀬店、足立東綾瀬郵便局など、日常生活に便利な施設が揃っております。
【物件概要】
・パナソニック ホームズ株式会社施工の戸建住宅です。
・外壁にはキラテックタイルを採用しております。
・平成28年1月築の… 続きを見る
調布市深大寺東町8丁目
-
ハウス
メーカー 
- 販売価格
-
9,880万円建物価格 4,900万円 / 土地価格 4,980万円
- 交通
-
- 中央本線「三鷹」駅バス乗車20分、諏訪神社停留所より徒歩1分
- 総武・中央緩行線「吉祥寺」駅バス乗車33分、諏訪神社停留所より徒歩1分
- 京王電鉄京王線「調布」駅バス乗車20分、諏訪神社停留所より徒歩2分
- 土地面積
- 145.52m²
- 間取り
- 3LDK + WIC+SIC
- 建物面積
- 111.56m²
- 築年月
- 2019年10 月
- 物件PR
- ー2019年新築のパナソニックホームズ(株)施工の注文住宅ー
・外壁はキラテックタイル(光触媒タイル)で高級感があります
光触媒により綺麗が長持ち
・LDK約18.7帖の開放感のある間取り
・便利なWIC(ウォークインクローゼット)とお出かけにも便利なSIC(シューズインクローゼット)
・2階の約8.9帖の洋室は約4.5帖と約4.4帖の2部屋に間取り変更可能
・エコナビ搭載換気シス… 続きを見る
町田市能ヶ谷5丁目
-
ハウス
メーカー 
- 販売価格
-
6,180万円建物価格 3,000万円 / 土地価格 3,180万円
- 交通
-
- 小田急電鉄小田原線「柿生」駅徒歩11分
- 土地面積
- 150.01m²
- 間取り
- 3LDK+S(納戸)
- 建物面積
- 138.34m²
- 築年月
- 1995年4 月
- 物件PR
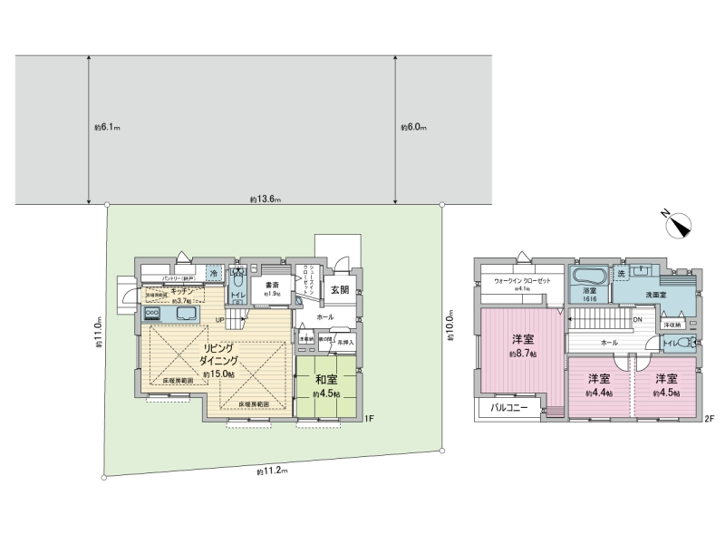
- パナソニックホームズ施工の軽量鉄骨造 瑕疵保険付き
平成7年4月築
前面道路幅員約5.0mの解放感のある立地
角地の閑静な住宅街
カースペース有
地下室付き
リフォーム済み(2025年8月29日完成)
■リフォーム内容
【外部】・外壁塗装・屋根塗装・シーリング打ち替え・玄関ドア交換・雨戸交換・網戸張替・バルコニー防水・伐採
【内部】・床上貼り・HEPA換気システム新設・パナソニック製… 続きを見る
神奈川県
横浜市旭区万騎が原
-
ハウス
メーカー 
- 販売価格
-
9,280万円建物価格 4,600万円 / 土地価格 4,680万円
- 交通
-
- 相模鉄道本線「二俣川」駅徒歩13分
- 相模鉄道いずみ野線「南万騎が原」駅徒歩19分
- 土地面積
- 166.08m²
- 間取り
- 3LDK
- 建物面積
- 121.36m²
- 築年月
- 2018年9 月
- 物件PR
- ・「二俣川」駅徒歩13分の好立地!
・Pnasonic Homes施工で、軽量鉄骨造の頑丈な建物!
・平成30年9月新築の築浅物件!
・延べ床面積121.36㎡で4LDKのゆったり空間!
・物件周辺には、スーパーやドラッグストアなど買い物施設がそろっています。
・小学校、中学校等教育施設もそろっています。
藤沢市葛原
-
ハウス
メーカー 
- 販売価格
-
3,750万円建物価格 1,480万円 / 土地価格 2,270万円
- 交通
-
- 小田急電鉄江ノ島線「湘南台」駅バス乗車14分、上宮下停留所より徒歩1分
- 相模鉄道いずみ野線「湘南台」駅バス乗車14分、上宮下停留所より徒歩1分
- 横浜市ブルーライン「湘南台」駅バス乗車14分、上宮下停留所より徒歩1分
- 土地面積
- 151.27m²
- 間取り
- 4LDK + S(納戸)
- 建物面積
- 120.20m²
- 築年月
- 2006年2 月
- 物件PR
- ◇小田急江ノ島線、相鉄いずみ野線、横浜市営地下鉄ブルーライン「湘南台」駅
バス14分、「上宮下」停徒歩1分の立地、3路線利用可能!
◇パナソニックホームズ株式会社施工の中古戸建
外壁は光触媒タイル「キラテック」のため、セルフクリーニング効果
により建物の美しさが長持ちします
◇瑕疵保険付物件!ご購入後も安心です!
◇4LDKのゆとりある間取り。各部屋5帖以上、収納有り!
◇南東… 続きを見る
このマークのある物件は、安心R住宅です。
安心R住宅とは、耐震性等国土交通省が定めた要件に適合した既存住宅のことです。
※詳細は、一般社団法人 優良ストック住宅推進協議会までお問合せください。

















































