栃木県
宇都宮市豊郷台3丁目
-
ハウス
メーカー 
- 販売価格
-
1,890万円建物価格 790万円 / 土地価格 1,100万円
- 交通
-
- 東北本線「宇都宮」駅 バス29分「豊郷台三丁目」停徒歩3分
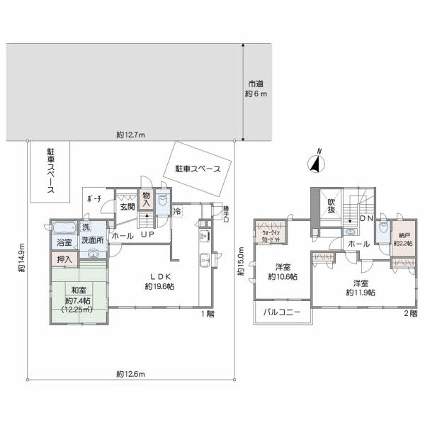
- 土地面積
- 190.27m²
- 間取り
- 3LDK+S(納戸)+WIC
- 建物面積
- 126.31m²
- 築年月
- 2001年6 月
- 物件PR
- ■軽量鉄骨造
■メーターモジュール
■全窓高断熱ペアガラス採用
■電動シャッター
■太陽光発電設備3.89kw搭載
■玄関上吹抜け
【リフォーム内容】
2013年4月:屋根塗り替え
2025年7月:食洗器交換
2025年7月:バルコニーシート防水リフレッシュ工事
2025年7月:ハウスクリーニング
宇都宮市桜4丁目
-
ハウス
メーカー 
- 販売価格
-
2,980万円建物価格 1,300万円 / 土地価格 1,680万円
- 交通
-
- 東武鉄道宇都宮線「東武宇都宮」駅より徒歩25分(2000m)
- 土地面積
- 134.02m²
- 間取り
- 3LDK+S(納戸)
- 建物面積
- 105.29m²
- 築年月
- 2006年3 月
- 物件PR
- ■積水ハウス株式会社施工
■軽量鉄骨造
■メーターモジュール
■車2台駐車可能(車種による)
■高断熱ペアガラス(全窓)
■1F掃き出し窓電動シャッター
■2F水まわり(洗面所、浴室)
【2021年9月リフォーム実施】
◎リビング・ダイニング床暖房工事
◎リビング・ダイニング・キッチン床重ね張り工事
宇都宮市鐺山町
-
ハウス
メーカー 
- 販売価格
-
2,980万円建物価格 2,000万円 / 土地価格 980万円
- 交通
-
- 湘南新宿ライン宇須「宇都宮」駅 バス38分「鐺山東」停徒歩10分
- 土地面積
- 203.00m²
- 間取り
- 4LDK+2S(納戸)+WIC
- 建物面積
- 132.98m²
- 築年月
- 2001年1 月
- 物件PR
- 2025年10月31日リノベーション完了!!
【リノベーション内容】
・フローリング上張り(1階、階段)
・内装クロス貼替
・照明器具新設
(1階ダウンライト、間接照明、2階洋室引掛シーリング)
・システムキッチン・カップボード交換
(LIXILリシェル・セラミックトップ採用)
【ガスコンロ、食器洗浄乾燥機、レンジフード】
・LD拡張
・1階納戸新設
・水回り移… 続きを見る
那須塩原市四区町
-
ハウス
メーカー 
- 販売価格
-
6,800万円建物価格 3,710万円 / 土地価格 3,090万円
- 交通
-
- 東北本線「西那須野」駅 バス22分「西小学校」停徒歩10分
- 土地面積
- 1,226.93m²
- 間取り
- 4LDK+書斎+WIC
- 建物面積
- 163.15m²
- 築年月
- 2001年12 月
- 物件PR
- ■積水ハウス株式会社施工
■軽量鉄骨造
■メーターモジュール
■土地面積:1,226.93㎡(約371.14坪)
■水回りリフォーム・外壁塗装実施済
・2020年1月:浴室、洗面、外構工事
・2021年1月:外壁塗装
・2022年1月:キッチン
・2024年1月:トイレ
・2025年1月:アプローチ舗装
■ドッグランのある邸宅
群馬県
このマークのある物件は、安心R住宅です。
安心R住宅とは、耐震性等国土交通省が定めた要件に適合した既存住宅のことです。
※詳細は、一般社団法人 優良ストック住宅推進協議会までお問合せください。



















































