京都府
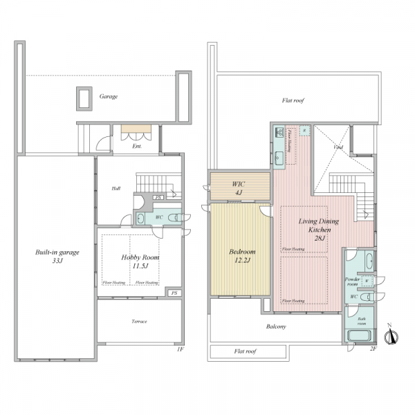
京都市伏見区桃山町安芸山
-
ハウス
メーカー 
- 販売価格
-
5,080万円建物価格 2,470万円 / 土地価格 2,610万円
- 交通
-
- 京都東西線・六地蔵駅 2番口 徒歩11分
- 京阪宇治線・六地蔵駅 徒歩13分
- 奈良線・六地蔵駅 徒歩14分
- 土地面積
- 130.00m²
- 間取り
- 3LDK
- 建物面積
- 99.37m²
- 築年月
- 2019年1 月
- 物件PR
- ■■スムストック認定物件の「3つの特長」 ■■
・新耐震基準レベルの耐震性を保持しています。
・50 年以上のメンテナンスプログラムにより、お住まいを長期にわたり守り続けています。
・新築時から実施した「点検・補修」の住宅履歴が保管されています。
■3沿線利用可能
京阪宇治線「六地蔵」駅、JR奈良線「六地蔵」駅、京都市営地下鉄東西線「六地蔵」駅
■2019年1月建築
… 続きを見る
大阪府
豊中市玉井町3丁目
-
ハウス
メーカー 
- 販売価格
-
5,990万円建物価格 1,390万円 / 土地価格 4,600万円
- 交通
-
- 阪急宝塚線・豊中駅 北改札口 徒歩8分
- 大阪モノレール・蛍池駅 ルシオーレ口 徒歩14分
- 阪急宝塚線・蛍池駅 西出口 徒歩15分
- 土地面積
- 158.73m²
- 間取り
- 2LDK+S(納戸)
- 建物面積
- 91.45m²
- 築年月
- 2002年2 月
- 物件PR
- 【住友林業施工】スムストック認定のお住まい
建物価格1,390万円/土地価格4,600万円
スムストック専用瑕疵保険付きの建物
■■スムストック認定物件の「3つの特長」■■
・新耐震基準レベルの耐震性を保持しています。
・50年以上のメンテナンスプログラムにより、お住まいを長期にわたり守り続けています。
・新築時から実施した「点検・補修」の住宅履歴が保管されています。
兵庫県
神戸市北区花山台
-
ハウス
メーカー 
- 販売価格
-
3,280万円建物価格 1,830万円 / 土地価格 1,450万円
- 交通
-
- 神鉄有馬線・花山駅 徒歩5分
- 神鉄有馬線・谷上駅 徒歩21分
- 北神急行・谷上駅 徒歩21分
- 土地面積
- 233.50m²
- 間取り
- 2LDK+S(納戸)
- 建物面積
- 122.54m²
- 築年月
- 2010年9 月
- 物件PR
- 【住友林業施工】スムストック認定のお住まい
建物価格1930万円
土地価格1550万円
スムストック専用瑕疵保険付きの建物
■■スムストック認定物件の「3つの特長」■■
・新耐震基準レベルの耐震性を保持しています。
・50年以上のメンテナンスプログラムにより、お住まいを長期にわたり守り続けています。
・新築時から実施した「点検・補修」の住宅履歴が保管されています。
神戸市北区泉台5丁目
-
ハウス
メーカー 
- 販売価格
-
6,980万円建物価格 4,780万円 / 土地価格 2,200万円
- 交通
-
- 神鉄有馬線・北鈴蘭台駅 西口 徒歩22分
- 神鉄粟生線・西鈴蘭台駅 徒歩24分
- 神鉄粟生線・鈴蘭台西口駅 徒歩28分
- 土地面積
- 214.21m²
- 間取り
- 4LDK
- 建物面積
- 106.61m²
- 築年月
- 2023年5 月
- 物件PR
- ■神戸市北区泉台5丁目中古戸建
■2023年5月建築
■住友林業株式会社施工の平家建
■BELS・長期優良住宅
■設計性能評価・建設性能評価有
■土地:約64坪
■南北両面道路
■駐車スペース有(サイズ制限有)
■4LDK→5LDKに変更可能
■太陽光発電システム
■アイランドキッチン
■システムバス1618サイズ
■ガス衣類乾燥機(乾太くん)
■LD… 続きを見る
姫路市龍野町5丁目
-
ハウス
メーカー 
- 販売価格
-
4,970万円建物価格 3,010万円 / 土地価格 1,960万円
- 交通
-
- 山陽線・姫路駅 姫路城口(北口) 徒歩24分
- 土地面積
- 216.95m²
- 間取り
- 3LDK+S(納戸)
- 建物面積
- 115.50m²
- 築年月
- 2020年4 月
- 物件PR
- 3LDK+WIC(2階は将来間仕切り仕様)/ホール・階段・LDK・居室オーク材床仕上、2階洋室チーク材床仕上/システムキッチン(カウンター付き)/システムバス1616/都市ガス/エネファーム/太陽光発電/エネルギー管理設備/24時間換気/玄関EC/外壁・屋根LS仕様/5年目定期点検実施/60年メンテナンスプログラム(維持保全計画書)/省令準耐火/設計・建設性能評価書/(PH)EV車2… 続きを見る
姫路市西新在家2丁目
-
ハウス
メーカー 
- 販売価格
-
1
億
200万円建物価格 6,380万円 / 土地価格 3,820万円
- 交通
-
- 山陽線・姫路駅 姫路城口(北口) 徒歩39分
- 山陽新幹線・姫路駅 北口/バス15分 新在家下車 徒歩3分
- 土地面積
- 329.74m²
- 間取り
- 2LDK+S(納戸)
- 建物面積
- 177.54m²
- 築年月
- 2017年3 月
- 物件PR
- 浴室から姫路城を望む/エントランス板張天井/モノトーンを基調とした玄関(吹抜)/車庫4台+ビルドインガレージ/ゲストルームは床タイル仕上げ/LDK天井レッドシダー・床マホガニー仕上/LDK約28帖/床暖房/クローゼット/庭テラス/バルコニー/庭倉庫/省令準耐火/遮音70仕様/エコキュート/屋根天然砕石仕上/外壁シーサンドコート仕上/24時間換気/60年維持保全計画書/設計・建設性能評… 続きを見る
赤穂市若草町
-
ハウス
メーカー 
- 販売価格
-
2,970万円建物価格 1,230万円 / 土地価格 1,740万円
- 交通
-
- 赤穂線・播州赤穂駅 南出口 徒歩16分
- 土地面積
- 405.51m²
- 間取り
- 4LDK+S(納戸)
- 建物面積
- 148.37m²
- 築年月
- 2001年9 月
- 物件PR
- 4SLDK/148平米/ホール上部は吹抜/納戸/附属建物(物置)/20年目定期点検済(防蟻保証承継可:要件あり)/敷地約122坪/区画整理地内/カースペース2台/JR播州赤穂駅徒歩16分/セブンイレブン徒歩5分/PAONE旬鮮食彩館徒歩11分/主婦の店徒歩11分/城西小徒歩4分/赤穂中央病院徒歩7分
【住友林業施工】スムストック認定のお住まい 建物価格1,230万円/土地価格1,740万円
宝塚市川面3丁目
-
ハウス
メーカー 
- 販売価格
-
6,300万円建物価格 1,980万円 / 土地価格 4,320万円
- 交通
-
- 阪急今津線・宝塚駅 出口2(阪急) 徒歩8分
- 福知山線・宝塚駅 出口1 徒歩9分
- 阪急宝塚線・清荒神駅 南改札口 徒歩9分
- 土地面積
- 158.41m²
- 間取り
- 3LDK
- 建物面積
- 143.25m²
- 築年月
- 2009年7 月
- 物件PR
- ■【住友林業施工】スムストック認定のお住まい
・建物価格1980万円
・土地価格4320万円
・スムストック専用瑕疵保険付きの建物
■■スムストック認定物件の「3つの特長」 ■■
・新耐震基準レベルの耐震性を保持しています。
・50 年以上のメンテナンスプログラムにより、お住まいを長期にわたり守り続けています。
・新築時から実施した「点検・補修」の住宅履歴が保管されてい… 続きを見る
和歌山県
このマークのある物件は、安心R住宅です。
安心R住宅とは、耐震性等国土交通省が定めた要件に適合した既存住宅のことです。
※詳細は、一般社団法人 優良ストック住宅推進協議会までお問合せください。



















































