滋賀県
甲賀市甲南町希望ケ丘本町2丁目
-
ハウス
メーカー 
- 販売価格
-
2,980万円建物価格 2,164万円 / 土地価格 816万円
- 交通
-
- JR草津線「甲南」駅から徒歩29分
- 土地面積
- 225.19m²
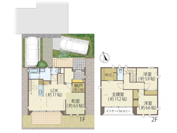
- 間取り
- 4LDK
- 建物面積
- 119.18m²
- 築年月
- 2015年3 月
- 物件PR
- 《住まいの特徴》
■ゆとりのあるお庭に面したリビング。4mの大開口を設置し開放的なリビングとなります
■トヨタホーム保証の継承が可能※詳細担当まで
《周辺環境》
■希望ヶ丘小学校 徒歩6分
■JR草津線「甲南駅」徒歩28分
■駐車場3台、車での買い物等周辺施設充実「スーパーハズイ水口店」2680m「ローソン甲南病院店」2230m「ドラッグユタカ水口暁店」2710mなど
… 続きを見る
湖南市日枝山手台3丁目
-
ハウス
メーカー 
- 販売価格
-
3,490万円建物価格 2,457万円 / 土地価格 1,033万円
【フラット35】 適合物件
- 交通
-
- JR草津線「三雲」駅から徒歩58分
- 土地面積
- 191.72m²
- 間取り
- 4SLDK
- 建物面積
- 114.64m²
- 築年月
- 2018年5 月
- 物件PR
- 【トヨタホーム施工&売主物件】
●土地敷地は50坪以上!南側には陽当たりの良い庭付きで、お子さまの遊び場や家庭菜園にもぴったり♪
●カーポート付きで、ハイルーフ車も駐車可能!最大3台まで駐車できるので、来客時も安心です。
●LDKは18帖以上の広々空間。リビング横にはくつろぎの和室もあり、家族の時間が自然と集まります♪
●内装一部リフォーム済みで、すぐにご入居可能!
●太陽… 続きを見る
京都府
木津川市城山台8丁目
-
ハウス
メーカー 
- 販売価格
-
4,080万円建物価格 1,918万円 / 土地価格 2,162万円
【フラット35】S 金利プランA適合物件
- 交通
-
- JR関西本線「木津」駅から徒歩12分
- JR奈良線「木津」駅から徒歩12分
- 土地面積
- 170.51m²
- 間取り
- 4SLDK
- 建物面積
- 118.95m²
- 築年月
- 2019年9 月
- 物件PR
- 〇トヨタクオリティ(トヨタ品質)を導入した鉄骨ユニット住宅
〇耐震等級3 長期優良住宅等高性能住宅
〇駅徒歩圏内の分譲地「フロンテ」内
〇2台駐車可能
〇建物・室内キレイにお使いです♪
〇太陽光発電、テラス庭、インナーバルコニー、床暖房、食洗機等設備充実
スムストック(一般社団法人優良ストック住宅推進協議会)認定住宅です。
・スムストックの3大原則・
(1)住宅履… 続きを見る
大阪府
兵庫県
このマークのある物件は、安心R住宅です。
安心R住宅とは、耐震性等国土交通省が定めた要件に適合した既存住宅のことです。
※詳細は、一般社団法人 優良ストック住宅推進協議会までお問合せください。



















































