埼玉県春日部市南2丁目

埼玉県春日部市南2丁目 [ 周辺地図 ]
  • 東武伊勢崎・大師線「春日部」駅より徒歩17分(1300m)
  • 東武伊勢崎・大師線「一ノ割」駅より徒歩18分(1400m)
4,680万円
建物価格 2,317万円 / 土地価格 2,363万円
【春日部市立上沖小学校】(890m)
【春日部市立大沼中学校】(1700m)
【コープみらい コープ春日部店】(750m)
【セブンイレブン 春日部南2丁目店】(260m)
【春日部大沼郵便局】(850m)
【ひかり第二幼稚園】(420m)
【ララガーデン春日部】(930m)
【南二丁目第一公園】(280m)
【ウエルシア春日部谷原店】(750m)
【LDK】
【LDK】
【LDK】
キッチン
キッチン
キッチン
キッチン
キッチン
キッチン
キッチン
和室
和室
和室
ウォークインクローゼット
ウォークインクローゼット
玄関
玄関
収納
バスルーム
洗面所
洗面所
バルコニー
設備(その他)
洋室
洋室
洋室
トイレ
その他画像
その他画像
その他画像

お問合せ

積水ハウス不動産株式会社 埼玉南営業所 積水ハウス不動産株式会社 埼玉南営業所 定休日:毎週土・日、祝日

お電話でのお問合せ

物件番号:C14810010168 お問合せの際に物件番号をお伝えください

PRポイント

◎積水ハウス施工 ◎オール電化 ◎長期優良住宅 
◎南向きバルコニー ◎全窓ペアガラス
◎カースペース2台分有 ◎太陽光2.96kw搭載
◎令和2年12月白蟻防除工事施工済 ◎住宅性能評価書有 

基本情報

商品名
間取り内訳
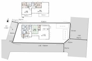
3LDK+2WIC  
建物面積
122.07 m²
土地面積
200.73 m²(登記)
私道負担
-
土地権利
所有権
構造・階建
軽量鉄骨造かわらぶき ・2階建
築年月
2010 年11月
用途地域
第一種住居地域
用途地域2
都市計画
市街化区域
建ぺい率
60%
容積率
200.00%
現況
空家
引渡し
相談
取引態様
専任媒介
駐車場
有2台 ※車種による
接道
東側:幅員8.7m公道に7.4m接道
南側:幅員3.7m公道に23.3m接道
インフラ
特徴・設備
特記事項
※上下水道敷地内引込有
※角地につき建蔽率が70%に緩和されます。
※南側対面側のセットバッグが未了です。
※オール電化につきガスの引込はありませんが前面南側道路に本管があります。

周辺環境

小学校:春日部市立上沖小学校まで890m(徒歩12分)
中学校:春日部市立大沼中学校まで1700m(徒歩22分)
スーパー:コープみらい コープ春日部店まで750m(徒歩10分)
コンビニ:セブンイレブン 春日部南2丁目店まで260m(徒歩4分)
金融施設:春日部大沼郵便局まで850m(徒歩11分)
教育施設:ひかり第二幼稚園まで420m(徒歩6分)
その他商業施設:ララガーデン春日部まで930m(徒歩12分)
公園:南二丁目第一公園まで280m(徒歩4分)
その他商業施設:ウエルシア春日部谷原店まで750m(徒歩10分)

情報更新日

情報更新日:2025-11-14  次回情報更新予定日:2025-11-28

お問合せ

積水ハウス不動産株式会社 埼玉南営業所

積水ハウス不動産株式会社 埼玉南営業所

TEL: 048-824-3377

FAX:

定休日:毎週土・日、祝日

〒330-0063 埼玉県さいたま市浦和区高砂二丁目1番1号 明治安田生命浦和ビル5階

免許番号:国土交通大臣免許(13)第2343号

(一社)不動産流通経営協会会員 (一社)不動産協会会員 (公社)首都圏不動産公正取引協議会加盟

お電話でのお問合せ

048-824-3377
物件番号:C14810010168 お問合せの際に物件番号をお伝えください
更に詳しい物件情報はコチラ ※物件情報を取り扱う会社のサイトへ移動します。
AreaPDFバナーClose AreaPDFバナー