兵庫県宝塚市山手台西2丁目

兵庫県宝塚市山手台西2丁目 [ 周辺地図 ]
  • 阪急電鉄宝塚線「山本」駅より バス乗車5分「宝塚山手台二丁目」停留所 停歩5分
  • 阪急電鉄宝塚線「山本」駅より 徒歩20分
  • 福知山線「中山寺」駅より 自動車12分(3.4km)
4,380万円
建物価格 1,272万円 / 土地価格 3,108万円
2025-09-01撮影 阪急バス「宝塚山手台二丁目」バス停より、阪急宝塚線「山本」駅へアクセス可能
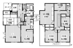
4LDK。大和ハウス(株)施工の軽量鉄骨造2階建。
周囲に戸建てが建ち並ぶ、落ち着いた住宅街です。第一種低層住居専用地域に位置しています。
床下収納や納戸など、室内の随所に豊富な収納スペースが設置されており住空間を有効活用できます。
南西側前面道路は幅員約6.2m。ゆとりがあるので、駐車や、お車同士のすれ違いもスムーズです。
現地写真
現地写真
現地写真
現地写真
現地写真
現地写真
現地写真
現地写真
現地写真
現地写真
現地写真
現地写真
現地写真
現地写真
阪急山本駅まで徒歩20分(約1600m)
中山寺駅まで車12分(約3400m)
宝塚山手台小学校まで徒歩4分(約270m)
宝塚市立山手台中学校まで徒歩3分(約200m)
ファミリーマート 宝塚山手台店まで徒歩7分(約500m)
ウエルシア宝塚山手台店まで徒歩6分(約450m)
阪急オアシス 宝塚山手台店まで徒歩9分(約700m)
追い焚き機能付きご家族の入浴時間がずれる時や冬場の寒い時期など、浴槽のお湯を温め直すことができます。

お問合せ

大和ハウスリアルエステート株式会社川西店 大和ハウスリアルエステート株式会社川西店 定休日:火曜日、水曜日、祝日

お電話でのお問合せ

物件番号:98425 お問合せの際に物件番号をお伝えください

PRポイント

・山手台西2丁目公園 徒歩1分(約63m) ・阪急山本駅 バス5分 宝塚山手台二丁目停 徒歩5分(約350m) ・ファミリーマート 宝塚山手台店 徒歩7分(約500m) ・ウエルシア宝塚山手台店 徒歩6分(約450m) ・阪急オアシス 宝塚山手台店 徒歩9分(約700m)

担当者天野樹一

大和ハウスリアルエステート株式会社
川西店

担当:天野樹一

初めまして。大和ハウスリアルエステート川西店の天野 樹一(アマノ シゲカズ)と申します。丁寧な対応を心がけ、お客様に寄り添ったご提案をいたします。お気軽にお問い合わせください。

基本情報

商品名
宝塚市山手台西2丁目
間取り内訳
4LDK+2S  
建物面積
142.08 m²(登記)
土地面積
196.70 m²(登記)
私道負担
-
土地権利
所有権
構造・階建
軽量鉄骨 ・2階建
築年月
1994 年4月
用途地域
第一種低層住居専用地域
用途地域2
都市計画
市街化区域
建ぺい率
50%
容積率
100.00%
現況
空家
引渡し
相談
取引態様
専任媒介
駐車場
有 車種によるサイズ制限有り
接道
南西側:幅員6.2m公道に14.8m接道
インフラ
電気/上水道/下水道
特徴・設備
電気/上水道/下水道/側溝/追焚機能/都市ガス/モニタ付インターホン/照明器具/トイレ2ヶ所/床下収納/シャッター雨戸/納戸/3口以上コンロ/エアコン2台以上/駐車場2台分/閑静な住宅街/セットバック済/整形地/緑豊かな住宅地/大型タウン内/南側道路面す/前道6m以上/即入居可/2階建/スーパー徒歩10分以内/小学校徒歩10分以内
特記事項

メンテナンス情報

実施済定期点検・診断(年目)

1
2
5
10
15
20
25
30
35
40
45
50

周辺環境

その他環境/阪急山本駅まで1600m(徒歩20分) 中山寺駅まで3400m(徒歩43分) 小学校/宝塚山手台小学校まで270m(徒歩4分) 中学校/宝塚市立山手台中学校まで200m(徒歩3分) コンビニ/ファミリーマート 宝塚山手台店まで500m(徒歩7分) ドラッグストア/ウエルシア宝塚山手台店まで450m(徒歩6分) スーパー/阪急オアシス 宝塚山手台店まで700m(徒歩9分)

情報更新日

情報更新日:2025-10-20  次回情報更新予定日:2025-11-03

お問合せ

大和ハウスリアルエステート株式会社川西店

大和ハウスリアルエステート株式会社川西店

TEL: 0120-077-177 /
072-740-6180

FAX:072-740-5188

定休日:火曜日、水曜日、祝日

〒666-0016 川西市中央町7番18号(ラ・ラ・グランデ3階)

免許番号:国土交通大臣(12)第2608号

(公社)全日本不動産協会会員 (公社)近畿地区不動産公正取引協議会加盟

お電話でのお問合せ

0120-077-177
072-740-6180
物件番号:98425 お問合せの際に物件番号をお伝えください
更に詳しい物件情報はコチラ ※物件情報を取り扱う会社のサイトへ移動します。
AreaPDFバナーClose AreaPDFバナー