神奈川県三浦市初声町下宮田

神奈川県三浦市初声町下宮田
  • 京急久里浜線「三崎口」駅より徒歩11分(870m)
5,190万円
建物価格 3,475万円 / 土地価格 1,715万円
リビング
リビング
リビング
リビング
リビング
キッチン
キッチン
その他画像
バスルーム
洗面所
トイレ
トイレ
トイレ
1階洋室約9.0帖
2階洋室約5.0帖
1階洋室約7.4帖・和室6.7帖
シューズインクローゼット
シューズインクローゼット
ロフト
ロフト
バルコニー
玄関
玄関
その他画像
その他画像
その他画像
前面道路含む現地写真
前面道路含む現地写真

お問合せ

積水ハウス不動産株式会社 横浜営業所 積水ハウス不動産株式会社 横浜営業所 定休日:毎週土・日、祝日

お電話でのお問合せ

物件番号:C14803214826 お問合せの際に物件番号をお伝えください

PRポイント

☆積水ハウス㈱施工の軽量鉄骨造2階建
☆京急ニュータウン三浦海岸分譲地内
☆オール電化住宅
 太陽光発電システム・エネファームあり
☆LD上部吹き抜けの為、開放感があります
☆約6.5帖のロフトあり
☆LD床暖房あり
☆2階洋室を仕切り、5LDKとしても利用可能

担当者大谷 拓矢

積水ハウス不動産株式会社
横浜営業所

担当:大谷 拓矢

お気軽にお問い合わせください!

基本情報

商品名
IS ROY+E Airkis
間取り内訳
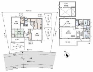
4LDK+2WIC+ロフト  
建物面積
148.16 m²
土地面積
231.08 m²(登記)
私道負担
-
土地権利
所有権
構造・階建
軽量鉄骨造かわらぶき ・2階建
築年月
2014 年3月
用途地域
第一種低層住居専用地域
用途地域2
都市計画
市街化区域
建ぺい率
40%
容積率
80.00%
現況
空家
引渡し
相談
取引態様
専任媒介
駐車場
有3台 
接道
南西側:幅員12.1m公道に14.4m接道
インフラ
電気:有 水道:公営水道
特徴・設備
南側道路面す/前道6m以上/LDK20畳以上/2階リビング/リビング吹抜け/ロフト/システムキッチン/対面式キッチン/浴室に窓/トイレ2ヶ所/床暖房/テラス/南面バルコニー/室内物干し/室内洗濯機置場/ウォークインクロゼット/ウォークインシューズクロゼット
特記事項
※南東側隣地が都市計画道路(三浦縦貫道路)として計画決定しています
※オール電化住宅の為、都市ガスの引込はありません
※写真撮影年月:令和7年9月
※法第22条指定
※建物高さ制限最高10m以下
※京急ニュータウン三浦海岸建築協定

周辺環境

小学校:三浦市立初声小学校まで1160m(徒歩15分)
中学校:三浦市立初声中学校まで1200m(徒歩15分)
教育施設:上宮田小羊保育園まで1300m(徒歩17分)
スーパー:ヤオコー三浦初声店まで1390m(徒歩18分)
コンビニ:セブンイレブン京急ST三崎口店まで850m(徒歩11分)
その他商業施設:クリエイトエス・ディー三浦初声店まで1400m(徒歩18分)
公園:沓形公園まで100m(徒歩2分)

情報更新日

情報更新日:2026-01-14  次回情報更新予定日:2026-01-28

お問合せ

積水ハウス不動産株式会社 横浜営業所

積水ハウス不動産株式会社 横浜営業所

TEL: 045-414-3377

FAX:

定休日:毎週土・日、祝日

〒220-0011 神奈川県横浜市西区高島二丁目6番32号横浜東口ウィスポートビル18階

免許番号:国土交通大臣免許(13)第2343号

(一社)不動産流通経営協会会員 (一社)不動産協会会員 (公社)首都圏不動産公正取引協議会加盟

お電話でのお問合せ

045-414-3377
物件番号:C14803214826 お問合せの際に物件番号をお伝えください
更に詳しい物件情報はコチラ ※物件情報を取り扱う会社のサイトへ移動します。
AreaPDFバナーClose AreaPDFバナー