埼玉県さいたま市西区大字中野林 883-30

埼玉県さいたま市西区大字中野林 883-30 [ 周辺地図 ]
  • 京浜東北・根岸線「大宮」駅バス乗車29分、中野林停留所より徒歩8分
2,890万円
建物価格 1,540万円 / 土地価格 1,350万円
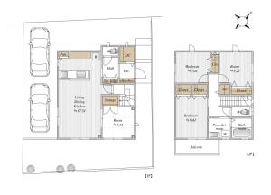
2025-10-27撮影 平成26年2月築の軽量鉄骨造2階建(屋根にはソーラーパネルを採用)。敷地面積143.56㎡の戸建住宅
1階は約17.5帖LDKに4.7帖の居室を併設、2階は3居室+水回りを集約。玄関SIC付全居室収納付
約17.5帖のLDKは、対面式キッチンを備え奥行きを生かした縦長設計
約17.5帖のLDKは、南西側と南東側に開口部を設けた2面採光
4.7帖の和室と隣接。引き戸の開閉で空間を一体化でき、多目的に活用できます
約4.7帖の和室は収納機能を確保。南東・北東に開口部を設けた2面採光で明るく換気も良好です
対面式カウンター付きキッチンを備え、空間の一体感を保ちながら作業ができる設計です
キッチンにはパントリーとカップボードを備え、調理器具や食器の整理がしやすい機能的な空間です
三面鏡裏収納付きの洗面台を採用し、日用品をすっきりと整理可能
窓を設けて採光と換気を確保し浴室乾燥機能と洗濯ポールを備えているため、天候を問わず衣類乾燥が行えます
南西向きの庭は日照に恵まれ、家庭菜園やガーデニング、物干しスペースとしても活用可能
玄関には姿見と天井までのシューズボックスを設置し、外出前の身だしなみ確認や収納効率に配慮
玄関横のSICは、可動棚により収納物のサイズに合わせて調整でき、窓を設けて採光と換気にも配慮
トイレには窓を設け自然光と換気を確保。タンクレスタイプを採用し、限られた空間をすっきりと見せる設計
2階西側に位置する約5帖の洋室は、収納を備え、2面採光により明るさと通風を確保
2階で最も広い約6.4帖の洋室は、南西向きバルコニーに出入り可能。室内には洗濯ポールを備えています
約6.4帖の洋室は、壁一面に収納を備え、衣類や日用品を効率よく整理可能。主寝室としても◎
全居室が角部屋に位置し、採光と通風を確保。各居室に収納を完備しています
南西向きのバルコニーには洗濯金物を設置しており、天候に合わせた洗濯物の乾燥や物干しに対応できる仕様
2階バルコニーからは目の前に公園が広がり開放的な景観を楽しめ屋外の緑を身近に感じられる利点があります
敷地内の自転車置き場には屋根を設け、雨天時でも自転車が濡れにくい仕様です
建物の隣に位置する駐車スペースは、2台を縦列で駐車可能
玄関にはワンドアツーロックを採用し、防犯性を確保。玄関ポーチ灯も設置
玄関ホールには棚付きの収納スペースを備え、出入り時の動線を妨げず収納効率にも配慮された空間です
LDKを通る動線で階段を配置しており、生活空間とプライベート空間をつなぐスムーズな動線となっています
2階ホールは各居室へのアクセスを確保し家族の動線を整理、さらに収納スペースを備えています
トイレは各階に設置され、利便性を確保。さらに窓を備えており、採光と換気に配慮された設計です
キッチンには3口IHコンロを設置。安全性や掃除のしやすさにも配慮されています
キッチンには食器洗い乾燥機を備えています

お問合せ

お電話でのお問合せ

物件番号:11-30829 お問合せの際に物件番号をお伝えください

PRポイント

さいたま市西区中野林に建つ平成26年2月築、庭付きの軽量鉄骨造2階建戸建て
【物件のおすすめポイント】
■全居室収納完備で、生活動線を考慮した4LDKの間取り
■玄関すぐに独立洗面台を設置。各階トイレも備え、手洗いや動線の利便性に配慮
■ガーデニングに活用できる、日当たりの良い南西向きの庭を完備
■LDKを通る階段で、家族の動きが自然に見渡せる動線

【周辺環境のおすすめポイント】
■目の前に二ツ宮住宅第2公園が広がり、開放的な景観と視界の抜けを確保した立地
■セブン-イレブン さいたま中野林中郷店まで徒歩8分

担当者織田 星児

パナソニック ホームズ不動産株式会社
関東住宅流通センター

担当:織田 星児

さいたま市西区中野林に建つ平成26年2月築の軽量鉄骨造2階建。南西向き庭や全居室収納を備え、日常の利便性と生活動線に配慮。目の前に公園が広がる開放感ある4LDKの戸建てです。

基本情報

商品名
間取り内訳
4LDK  
建物面積
100.28 m²(登記)
土地面積
143.56 m²(登記)
私道負担
土地権利
所有権
構造・階建
軽量鉄骨造 ・2階建
築年月
2014 年2月
用途地域
無指定
用途地域2
都市計画
市街化調整区域
建ぺい率
60%
容積率
200.00%
現況
空家
引渡し
相談
取引態様
専任媒介
駐車場
カースペース
接道
北西側:幅員5.1m公道に10.9m接道
インフラ
東京電力/集中プロパンガス/公営水道/公共下水
特徴・設備
緑豊かな住宅地/閑静な住宅地/オール電化/トイレ2か所/IHクッキングヒーター/庭/シューズインクローク/浴室に窓/駐車2台可
特記事項

周辺環境

セブンイレブンさいたま中野林中郷店まで約600m(徒歩8分)
二ツ宮内科クリニックまで約550m(徒歩7分)
さいたま市立植水小学校まで約1,700m(徒歩22分)
さいたま市立植水中学校まで約400m(徒歩5分)
マルエツ佐知川店まで約1,800m(徒歩23分)

情報更新日

情報更新日:2026-01-16  次回情報更新予定日:2026-01-30

お問合せ

パナソニック ホームズ不動産株式会社 関東住宅流通センター

パナソニック ホームズ不動産株式会社 関東住宅流通センター

TEL: 047-420-2213

FAX:047-420-2215

定休日:水曜・日曜・祝日

〒273-0005 千葉県船橋市本町2丁目1-34 船橋スカイビル6階

免許番号:国土交通大臣(4)第7608号

(一社)不動産流通経営協会会員 (公社)首都圏不動産公正取引協議会加盟 (一社)優良ストック住宅推進協議会加盟

お電話でのお問合せ

047-420-2213
物件番号:11-30829 お問合せの際に物件番号をお伝えください
更に詳しい物件情報はコチラ ※物件情報を取り扱う会社のサイトへ移動します。
AreaPDFバナーClose AreaPDFバナー