新潟県新発田市御幸町1丁目

新潟県新発田市御幸町1丁目 [ 周辺地図 ]
  • JR白新線「新発田」駅から徒歩22分
1,500万円
建物価格 946万円 / 土地価格 554万円
【フラット35】S 金利プランB適合物件[詳細説明

【フラット35】S 金利プランB適合物件 の詳細説明

民間金融機関と住宅金融支援機構が提供する最長35年の全期間固定金利住宅ローン
「フラット35」の技術基準に適合している住宅で且つ、更に省エネルギー性、耐震性など質の高い住宅として「フラット35S」金利Bプラン技術基準に適合。
借入金利が当初5年間、年0.25%引下げになります。「スムストックで手続簡素化」対象
※2019年12月現在

外観
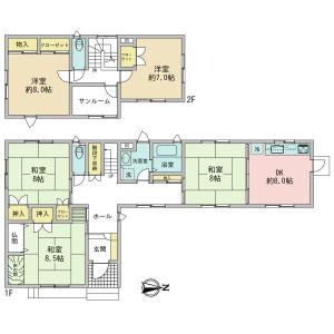
間取り図
玄関
玄関ホール
和室1
キッチン※画像は実際の室内写真にAIで既存小物等を 削除し再現した参考写真です、実際とは 異なる場合がございますので、是非現地にてご確認ください。
和室2
和室3
洋室1※画像は実際の室内写真にAIで既存小物等を 削除し再現した参考写真です、実際とは 異なる場合がございますので、是非現地にてご確認ください。
洋室2※画像は実際の室内写真にAIで既存小物等を 削除し再現した参考写真です、実際とは 異なる場合がございますので、是非現地にてご確認ください。
階段
浴室※画像は実際の室内写真にAIで既存小物等を 削除し再現した参考写真です、実際とは 異なる場合がございますので、是非現地にてご確認ください。
2Fトイレ
サンルーム
新発田市立住吉小学校
新発田市立猿橋中学校
新発田大手郵便局
新発田市役所
新発田病院
中川内科医院
既存住宅売買瑕疵保険 適合住宅
万が一、建物に不具合が見つかったときにも「既存住宅売買瑕疵担保責任保険」にて補償されます。 ※適用には諸条件があります。詳しくは営業担当にお尋ねください。

お問合せ

三井ホーム北新越株式会社 新潟本社 三井ホーム北新越株式会社 新潟本社 定休日:毎週水曜日、日曜日、祝日

お電話でのお問合せ

物件番号:7031317 お問合せの際に物件番号をお伝えください

PRポイント

□快適性と安全性、安心感を贈る住まい    
 三井ホーム独自2×4工法は高い耐震性と気密性を誇り、
 建物の変形や倒壊を防ぎ、高気密高断熱で外気の影響を
 受けにくい、省エネルギーの建物です
□風通しが良く、季節を感じる住まい 
□車3台駐車可能(車種による)

三井ホーム北新越株式会社
 新潟本社

担当:新潟本社

売主様居住中の物件となります。
内覧希望については、日程の調整が必要となります。

基本情報

商品名
三井ホーム施工 新発田市御幸町1丁目
間取り内訳
5DK  1階 DK 8帖 1室、1階 和 8帖 2室、1階 和 8.5帖 1室、2階 洋 8帖 1室、2階 洋 7帖 1室
建物面積
131.65 m²(登記)
土地面積
278.17 m²(登記)
私道負担
-
土地権利
所有権
構造・階建
木造 ・2階建
築年月
1997 年10月
用途地域
第一種住居地域
用途地域2
都市計画
市街化区域
建ぺい率
60%
容積率
200.00%
現況
居住中
引渡し
要相談
取引態様
専任媒介
駐車場
駐車場:有、車庫区分:カーポート、台数:3台
接道
接道1 種別:公道、方向:北、幅員:8.00m
接道2 種別:公道、方向:南、幅員:4.80m
接道3 種別:公道、方向:東、幅員:1.50m
インフラ
ガス:都市ガス/水道:公営水道/汚水:公共下水/雑排水:公共下水
特徴・設備
前面道路6m以上/閑静な住宅地/駐車場3台分以上/グリル/追焚き給湯/シャワー/浴室に窓/バス1坪以上/バストイレ別/トイレ2ヶ所/オープンキッチン/床下収納/物置/収納/全居室複層ガラスか複層サッシ/個別空調/エアコン2台以上/和室/勝手口/室内物干し/24時間換気システム/外壁サイディング/高気密高断熱住宅/瑕疵保険(国土省指定)保証付/修繕・点検の記録
特記事項
建築基準法第22条区域

メンテナンス情報

実施済定期点検・診断(年目)

1
2
5
10
20
30
40
50
60

周辺環境

新発田市立住吉小学校 距離:1300m
新発田市立猿橋中学校 距離:950m
ウオロク 住吉町店 距離:800m
県立新発田病院 距離:1500m
中川内科医院 距離:450m
新発田市役所 距離:950m

情報更新日

情報更新日:2025-11-29  次回情報更新予定日:2025-12-13

お問合せ

三井ホーム北新越株式会社 新潟本社

三井ホーム北新越株式会社 新潟本社

TEL: 025-241-3124

FAX:025-241-4148

定休日:毎週水曜日、日曜日、祝日

〒950-0912 新潟県新潟市中央区南笹口2-6-31

免許番号:国土交通大臣(3)第7902号

(公社)新潟県宅地建物取引業協会 (公社)首都圏不動産公正取引協議会 (一社)優良ストック住宅推進協議会加盟

お電話でのお問合せ

025-241-3124
物件番号:7031317 お問合せの際に物件番号をお伝えください
AreaPDFバナーClose AreaPDFバナー