埼玉県春日部市南2丁目3873番1

埼玉県春日部市南2丁目3873番1 [ 周辺地図 ]
  • 東武伊勢崎・大師線 東武鉄道野田線「春日部」駅より徒歩17分(1300m)
  • 東武伊勢崎・大師線「一ノ割」駅より徒歩18分(1400m)
3,980万円
建物価格 2,317万円 / 土地価格 1,663万円
現地外観写真
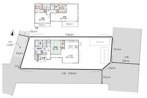
間取り図
現地外観写真
LDK
LDK
LDK
キッチン
キッチン
キッチン
キッチン
キッチン
キッチン
リビング以外の居室
リビング以外の居室
リビング以外の居室
収納
収納
玄関
玄関
収納
スイッチ類・TV付インターホン

お問合せ

積水ハウス不動産株式会社 埼玉南営業所 積水ハウス不動産株式会社 埼玉南営業所 定休日:毎週土・日、祝日

お電話でのお問合せ

物件番号:B02803-000025 お問合せの際に物件番号をお伝えください

PRポイント

◎積水ハウス施工 ◎オール電化 ◎長期優良住宅 
◎南向きバルコニー ◎全窓ペアガラス
◎カースペース2台分有 ◎太陽光2.96kw搭載
◎令和2年12月白蟻防除工事施工済 ◎住宅性能評価書有 

売主様からのメッセージ

-

担当者高田 尚貴

積水ハウス不動産株式会社
埼玉南営業所

担当:高田 尚貴

-

基本情報

商品名
Be ECORD Casual
間取り内訳
間取:3LDK 間取詳細:3LDK+2WIC  
建物面積
122.07 m²
土地面積
200.73 m²(登記)
私道負担
-
土地権利
所有権
構造・階建
建物構造:軽量鉄骨 建物構造詳細:軽量鉄骨造かわらぶき2階建 ・2階建
築年月
2010 年11月
用途地域
第一種住居地域
用途地域2
都市計画
市街化区域
建ぺい率
60%
容積率
200.00%
現況
空家
引渡し
要相談
取引態様
専任媒介
駐車場
駐車場:空有2台 駐車場詳細:※車種による
接道
東側:幅員8.7m公道に7.4m接道/南側:幅員3.7m公道に23.3m接道
インフラ
電気:オール電化
特徴・設備
浴室乾燥機/モニタ付インターホン/LDK15畳以上/和室/ウォークインクローゼット/オール電化/南面バルコニー/IHクッキングヒーター/食器洗浄乾燥機/全居室6畳以上/南向/設計住宅性能評価付/新築・増改築設計図書/駅まで平坦/スーパーが近い/駐車2台可能
特記事項
※上下水道敷地内引込有
※角地につき建蔽率が70%に緩和されます。
※南側対面側のセットバッグが未了です。
※オール電化につきガスの引込はありませんが前面南側道路に本管があります。

周辺環境

小学校:春日部市立上沖小学校まで約890m
中学校:春日部市立大沼中学校まで約1700m
スーパー:コープみらい コープ春日部店まで約750m
コンビニ:セブンイレブン 春日部南2丁目店まで約260m
銀行:春日部大沼郵便局まで約850m
その他:ひかり第二幼稚園まで約420m
その他:ララガーデン春日部まで約930m
公園:南二丁目第一公園まで約280m
その他:ウエルシア春日部谷原店まで約750m

情報更新日

情報更新日:2026-02-26  次回情報更新予定日:2026-03-12

お問合せ

積水ハウス不動産株式会社 埼玉南営業所

積水ハウス不動産株式会社 埼玉南営業所

TEL: 048-824-3377

FAX:

定休日:毎週土・日、祝日

〒330-0063 埼玉県さいたま市浦和区高砂2丁目1番1号 明治安田生命浦和ビル5階

免許番号:国土交通大臣免許(13)第2343号

(一社)不動産流通経営協会会員 (一社)不動産協会会員 (公社)首都圏不動産公正取引協議会加盟  

お電話でのお問合せ

048-824-3377
物件番号:B02803-000025 お問合せの際に物件番号をお伝えください
更に詳しい物件情報はコチラ ※物件情報を取り扱う会社のサイトへ移動します。
AreaPDFバナーClose AreaPDFバナー