北海道恵庭市恵み野北1丁目 2-1

北海道恵庭市恵み野北1丁目 2-1 [ 周辺地図 ]
  • 千歳線「恵み野」駅徒歩13分
2,800万円
建物価格 1,000万円 / 土地価格 1,800万円
2026-02-02撮影
LDKの広さは約21.2帖。リビングの大きな窓は、朝~夕方まで陽の光を家の中に取り込みます。
大画面のテレビを用意したくなる広々リビング。明るく暖かな空間は自然と家族が集まります。
キッチンで作業をしながらテレビを見たり、お子様が遊んでいる姿を見守ることができます♪
ダイニングはキッチンに隣接しており、配膳や片付けがしやすいです。食事と会話をお楽しみください。
お料理中の動きがコンパクトなL型キッチン。
三面鏡にもなる収納量豊富な洗面化粧台。
窓付きのお風呂です。換気もでき、いつまでも清潔なままのお風呂に。
窓付きのトイレは換気ができて清潔な空気に。光も差し込むので明るい雰囲気です。
8.1帖の1F洋室には納戸付で、お荷物が多くても安心の収納力です。
1F洋室の納戸。季節物の衣類もスッキリ収納できそうですね♪
タタミルームはリビング・ダイニングとつづき間になっています。目線が抜けて空間が広く感じられます。
8.3帖の洋室。お子様のお部屋にも十分な広さです。
8.3帖の2F洋室にはご家族の思い出も大切にしまっておけるたっぷり収納付き♪
柱と梁をボックス型に一体化したユニット。単体でもシェルターの様に巨大地震に耐えうる強さを発揮します。
セキスイハイムでは、鉄骨ラーメン構造の住まいの大半あを工場で仕上げる、ユニット工法を採用しています。
コンピューターが読み込む設計図に沿って、先進機械が邸別に住まいを組み立てます。
セキスイハイムは機械による精度の高い溶接と品質管理にこだわっています。
上下左右のユニットを連結し、構造を一体化。地震のエネルギーを分散する耐震構造です。
ラーメン構造は、強さと空間自由度が求められる超高層ビルにも採用されています。
セキスイハイムのアップサイクル住宅『Beハイム』は、2024年度グッドデザイン賞を受賞しました。(積水化学工業(株)住宅カンパニーが受賞)

お問合せ

北海道セキスイハイム株式会社 不動産部 - 北海道セキスイハイム株式会社 不動産部 - 定休日:火・水曜日 ※定休日当日の対応は出来かねます。

お電話でのお問合せ

物件番号:01-11656 お問合せの際に物件番号をお伝えください

PRポイント

【時を経ても続く価値を紡いでいく住宅】セキスイハイム施工物件
■「恵み野駅」徒歩13分で、朝の時間にゆとりが持てます♪
■新築時から60年の長期にわたりメンテナンスをサポートします
■強さと空間自由度が求められる超高層ビルにも採用のボックスラーメン構造
■閑静な住宅地で叶える穏やかな新生活
■スーパーやコンビニが徒歩7分圏内に揃う充実の住環境
■開放感と採光にこだわった約21.2帖のLDK

担当者中田 優作

北海道セキスイハイム株式会社
不動産部 -

担当:中田 優作

【セキスイハイム×リノベーション】5年保証付きの弊社売主中古住宅!まずはお気軽にご連絡ください♪

基本情報

商品名
ノースワード
間取り内訳
4LDK+S(納戸)  【1階】LDK21.2帖 【1階】洋室8.1帖 【1階】和室6.1帖 【2階】洋室8.3帖 【2階】洋室8.3帖
建物面積
141.66 m²(登記)
土地面積
289.49 m²(登記)
私道負担
土地権利
所有権
構造・階建
軽量鉄骨造 ・2階建
築年月
1986 年8月
用途地域
第一種低層住居専用地域
用途地域2
都市計画
市街化区域
建ぺい率
40%
容積率
60.00%
現況
空家
引渡し
即時
取引態様
売主
駐車場
カースペース
接道
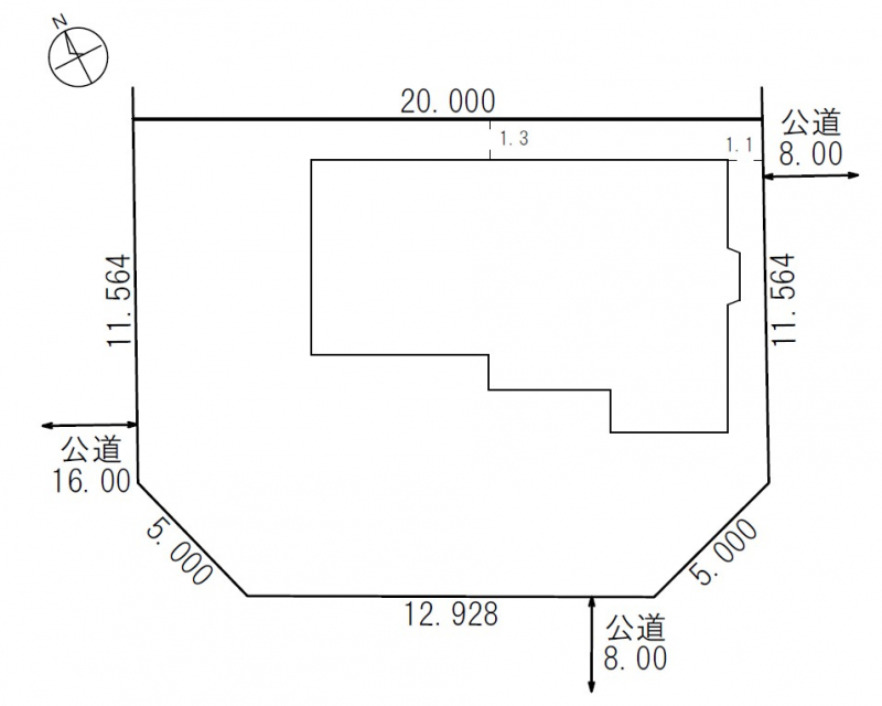
北西側:幅員16m公道に11.5m接道
南西側:幅員8m公道に12.9m接道
南東側:幅員8m公道に11.5m接道
インフラ
電気/集中プロパンガス/公営水道/下水道
特徴・設備
閑静な住宅地/前道6m以上/平坦地/60年長期・長期サポート/耐震構造/TVモニタ付インターホン/リビングダイニング20畳以上/外装リフォーム/内装リフォーム
特記事項
施工会社:北海道セキスイハイム株式会社
景観計画区域、法22条区域

メンテナンス情報

リフォーム

  • 2019年9月 外壁交換工事
  • 2019年9月 浴室・洗面交換工事
  • 2025年2月 2階窓サッシ一部入替工事
  • 2026年1月 照明交換工事
  • 2026年1月 暖房ボイラー新規交換
  • 2026年1月 給湯ボイラー新規交換
  • 2026年1月 たたみ交換工事
  • 2026年1月 クッションフロア貼替工事
  • 2026年1月 フローリング貼替工事
  • 2026年1月 全室クロス貼替工事
  • 2026年1月 ハウスクリーニング

周辺環境

恵み野第二幼稚園まで約1,200m(徒歩15分)
恵み野小学校まで約1,400m(徒歩18分)
恵み野中学校まで約1,000m(徒歩13分)
セイコーマート恵み野北店まで約150m(徒歩2分)
おおぞら公園まで約170m(徒歩3分)
高松歯科まで約450m(徒歩6分)
コープさっぽろ恵み野店まで約550m(徒歩7分)
恵庭恵み野中郵便局まで約600m(徒歩8分)
DCM恵庭店まで約950m(徒歩12分)

情報更新日

情報更新日:2026-02-02  次回情報更新予定日:2026-02-16

お問合せ

北海道セキスイハイム株式会社 不動産部 -

北海道セキスイハイム株式会社 不動産部 -

TEL: 011-726-2826

FAX:011-707-3673

定休日:火・水曜日 ※定休日当日の対応は出来かねます。

〒001-0014 札幌市北区北14条西4丁目2-1 ハーモネートビル

免許番号:北海道知事石狩(13)第2509号

(公社)北海道宅地建物取引業協会会員 (一社)北海道不動産公正取引協議会加盟

お電話でのお問合せ

011-726-2826
物件番号:01-11656 お問合せの際に物件番号をお伝えください
更に詳しい物件情報はコチラ ※物件情報を取り扱う会社のサイトへ移動します。
AreaPDFバナーClose AreaPDFバナー