神奈川県三浦市初声町下宮田1079ー141

神奈川県三浦市初声町下宮田1079ー141 [ 周辺地図 ]
  • 京急久里浜線「三崎口」駅より徒歩11分(870m)
4,980万円
建物価格 3,475万円 / 土地価格 1,505万円
【フラット35】 適合物件[詳細説明

【フラット35】 適合物件 の詳細説明

民間金融機関と住宅金融支援機構が提供する最長35年の全期間固定金利住宅ローン
「フラット35」の技術基準に適合している住宅。「スムストックで手続簡素化」対象

【外観写真】2014年3月築、軽量鉄骨造2階建て「4LDK」のオール電化住宅。土地面積69坪超の広さがあり、3台分のカースペースも確保されています(車種による)。/2025年9月撮影
広々バルコニーに面すLDKは、約20.0帖のゆとりある空間。水回りも2階に集約され、家事・生活動線良好です。洋室が隣接している他、上部にロフトが設けられています。大容量のWICなど、豊富な収納も魅力!
【和室/約6.7帖】隣接する洋室と一体利用が可能◎お子様のお昼寝スペースや家事スペースなど、ライフスタイルに合わせてフレキシブルにご活用いただけます。屋根付きのテラスへアクセス可能です。/2025年9月撮影
【1階洋室/約9.0帖】ダークカラーのアクセントクロスが採用された、落ち着いた印象の洋室です。2面採光のため、あたたかな陽光が差し込み、のんびりとリラックスタイムをお過ごしいただけます。/2025年9月撮影
【LDK/約20.0帖】大きな開口部からたっぷりと自然光が差し込む穏やかな空間。ご家族やゲストとコミュニケーションが取りやすい対面式キッチンが採用されています。/2025年9月撮影
【LDK/約20.0帖】LD上部に吹抜けが採用された、明るく開放感溢れるLDK。ゆったりとした広さが確保され、心地よい空間で、ゆったりと家族団欒のひとときをお過ごしいただけます。/2025年9月撮影
【LDK/約20.0帖】リビング・ダイニングを区分けして家具を配置しやすいレイアウトです。お好みのインテリアを置いて、ゆっくりとお過ごしいただけます。/2025年9月撮影
【LDK/約20.0帖】ナチュラルな木目のフローリングから木のぬくもりを感じられます。リビングは床暖房が搭載されており、冬場でも足元からぽかぽかと暖かく過ごせます。/2025年9月撮影
【2階洋室/約10.1帖】2階の洋室は、将来2部屋に間仕切り可能な2ドア1ルームが採用されています。ご家族のライフスタイルの変化に対応できる、可変性のある間取りが魅力です。/2025年9月撮影
【キッチン】室内の雰囲気に馴染むホワイトカラーの対面式キッチン。背面には、大容量のカップボードが備わっており、キッチンまわりをすっきりと保つことができそうです。/2025年9月撮影
【SIC】玄関には、靴を履いたまま使用できる大容量のSICが設けられています。靴類だけでなく、アウトドア用品やスポーツ用品などもたっぷり収納可能です。/2025年9月撮影
【テラス】和室よりアクセス可能な屋根付きのテラスが備わっています。椅子に座ってお茶をするなど、ちょっとしたプライベート空間としても楽しめそうです。/2025年9月撮影
【トイレ/1階】ホワイトを基調とした、清潔感のあるトイレです。年間を通して、快適に使うことができる温水洗浄便座付き。リモコンは操作しやすい壁付けタイプです。/2025年9月撮影
【浴室】ワイドミラーが採用されたホテルライクな浴室です。浴槽・洗い場ともに開放感のある広さのため、お子様との入浴時も快適です。浴室には窓があり、自然換気もスムーズ◎/2025年9月撮影
【バルコニー】陽光がたっぷり差し込む、広々としたバルコニー。洗濯干しスペースとしてはもちろん、仕事や家事の合間の休憩スペースとしても重宝しそうです。/2025年9月撮影
【ランドリールーム】天候や時間帯を気にせず、雨の日や夜間でも快適に洗濯物を乾かせるランドリールーム。室内物干し付きで、毎日の家事がスムーズに◎/2025年9月撮影
【ロフト】LDKから行き来可能なロフトスペース。収納スペースとしてはもちろん、おもちゃや絵本を置いてお子様の秘密基地風にも◎/2025年9月撮影
【洗面室】ワイドタイプの洗面化粧台です。2人並んで身支度ができ、忙しい朝の時間帯もスムーズに行動できます。洗面ボウル下収納は、立った状態でも出し入れしやすいスライド式です。/2025年9月撮影
【前面道路含む現地写真】前面道路は、南西側幅員約12.1mと開放感のある広さ。横浜・品川方面へアクセス可能な、京急久里浜線「三崎口」駅まで徒歩11分の立地です。/2025年9月撮影
【スムストック】検査を通して、優良ストック住宅推進協議会により認定された、積水ハウス施工物件です。
【LDK/約20.0帖】床暖房が設置されています。冬場でも足元からぽかぽかと暖かく過ごせます。窓にはペアガラスを採用していますので、外部の気温に影響されにくく、暖まった空気を外に逃がしません。/2025年9月撮影
【ロフト】ちょっとした隠れ家のような遊び心を感じるロフトは約6.5帖の広さ。シーズンオフの衣類や寝具などの収納にも重宝しそうです。/2025年9月撮影
【駐車場】3台分駐車可能なカースペースが設けられています(車種による)。セカンドカーの所有や、来客時に便利です。自転車やバイクなどの駐輪にも活用いただけます。/2025年9月撮影
【前面道路含む現地写真】前面道路は歩道が設置されているため、ベビーカーでの移動やペットとのお散歩などでも、負担が少なく通行できます。/2025年9月撮影
【現地外観写真】2階の南西側にバルコニーが設置されています。天気の良い日には明るい陽差しが期待でき、洗濯物や布団を気持ち良く乾かすこともできそうです。/2025年9月撮影
【前面道路含む現地写真】第一種低層住居専用地域内に位置しています。周辺は一戸建て住宅が建ち並ぶ閑静な住環境で、穏やかな暮らしを送れそうです。/2025年9月撮影
【キッチン】お手入れのしやすいIHクッキングヒーターが搭載されています。火やガスを使わないので、熱気が室内に充満しにくく、夏でも快適に調理することができます。
【トイレ/1階】独立した手洗いカウンター+鏡付きのトイレ。ゲストを招く際は、洗面室に案内することなく手を洗っていただけます。/2025年9月撮影
【トイレ/2階】トイレは各階に設置されておりますので、朝の忙しい時間帯や来客時にもスムーズに使用できます。独立した手洗器が備わっており、使用後すぐに手を洗えて衛生的です。/2025年9月撮影
【SIC】キャンプやガーデニング、ゴルフバッグなどの趣味の道具なども収納できます。/2025年9月撮影
【玄関】収納が備えられ、ご家族皆様の靴がたっぷりと収納できます。棚上に、季節の花やお好みの物を飾ることができ、空間作りをお楽しみいただけます。/2025年9月撮影
【玄関】陽光が差し込む開放的な玄関ホールです。姿見付きですので、お出かけ前の身だしなみチェックが可能です。/2025年9月撮影

お問合せ

積水ハウス不動産株式会社 横浜営業所 積水ハウス不動産株式会社 横浜営業所 定休日:毎週土・日、祝日

お電話でのお問合せ

物件番号:B02791-000001 お問合せの際に物件番号をお伝えください

PRポイント

☆積水ハウス(株)施工の軽量鉄骨造2階建
☆京急ニュータウン三浦海岸分譲地内
☆オール電化住宅
 太陽光発電システム・エネファームあり
☆LD上部吹き抜けの為、開放感があります
☆約6.5帖のロフトあり
☆LD床暖房あり
☆2階洋室を仕切り、5LDKとしても利用可能

売主様からのメッセージ

売主様写真

-

担当者大谷 拓矢

積水ハウス不動産株式会社
横浜営業所

担当:大谷 拓矢

お気軽にお問い合わせください!

基本情報

商品名
IS ROY+E Airkis
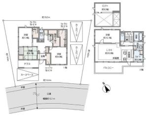
間取り内訳
間取:4LDK 間取詳細:4LDK+2WIC+ロフト  
建物面積
148.16 m²
土地面積
231.08 m²(登記)
私道負担
-
土地権利
所有権
構造・階建
建物構造:軽量鉄骨 建物構造詳細:軽量鉄骨造かわらぶき2階建 ・2階建
築年月
2014 年3月
用途地域
第一種低層住居専用地域
用途地域2
都市計画
市街化区域
建ぺい率
40%
容積率
80.00%
現況
空家
引渡し
要相談
取引態様
専任媒介
駐車場
駐車場:空有3台
接道
南西側:幅員12.1m公道に14.4m接道
インフラ
電気:電気 ガス:プロパンガス・個別LPG 排水:下水道・本下水 水道:上水道・公営水道
特徴・設備
太陽光発電システム/カウンターキッチン/システムキッチン/浴室に窓/温水洗浄便座/トイレ2箇所/床暖房/ロフト/LDK20畳以上/和室/ウォークインクローゼット/シューズインクローク/室内洗濯機置場/室内物干機/電気/上水道/下水道/プロパンガス/南面バルコニー/テラス/吹抜/公営水道/個別LPG/本下水/2階建/前道6m以上/南側道路面す/整備された歩道/新築・増改築設計図書/修繕・点検記録
特記事項
※南東側隣地が都市計画道路(三浦縦貫道路)として計画決定しています
※オール電化住宅の為、都市ガスの引込はありません
※写真撮影年月:令和7年9月
※法第22条指定
※建物高さ制限最高10m以下
※京急ニュータウン三浦海岸建築協定

周辺環境

幼稚園保育園:上宮田小羊保育園まで約1300m
小学校:三浦市立初声小学校まで約1160m
中学校:三浦市立初声中学校まで約1200m
コンビニ:セブンイレブン京急ST三崎口店まで約850m
スーパー:ヤオコー三浦初声町店まで約1390m
ドラッグストア:クリエイトSD三浦初声町店まで約1400m
公園:沓形公園まで約100m

情報更新日

情報更新日:2026-02-22  次回情報更新予定日:2026-03-08

お問合せ

積水ハウス不動産株式会社 横浜営業所

積水ハウス不動産株式会社 横浜営業所

TEL: 045-414-3377

FAX:

定休日:毎週土・日、祝日

〒220-0011 神奈川県横浜市西区高島2丁目6番32号横浜東口ウィスポートビル18階

免許番号:国土交通大臣免許(13)第2343号

(一社)不動産流通経営協会会員 (一社)不動産協会会員 (公社)首都圏不動産公正取引協議会加盟  

お電話でのお問合せ

045-414-3377
物件番号:B02791-000001 お問合せの際に物件番号をお伝えください
更に詳しい物件情報はコチラ ※物件情報を取り扱う会社のサイトへ移動します。
AreaPDFバナーClose AreaPDFバナー