静岡県三島市川原ケ谷230番30

静岡県三島市川原ケ谷230番30
  • 伊豆箱根鉄道駿豆線「三島二日町」駅徒歩18分
2,950万円
建物価格 1,652万円 / 土地価格 1,298万円
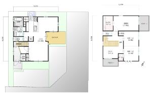
撮影年月:令和6年8月 写真内の車は価格には含まれません。
掲載の間取り図は設計図書を基に描き起こしたもので実際とは多少異なる場合があります。

お問合せ

お電話でのお問合せ

物件番号:31403 お問合せの際に物件番号をお伝えください

基本情報

商品名
xevoE
間取り内訳
2LDK  
建物面積
109.12 m²
土地面積
137.59 m²(登記)
私道負担
-
土地権利
所有権
構造・階建
軽量鉄骨造 ・2階建
築年月
2012 年10月
用途地域
第二種中高層住居専用地域
用途地域2
都市計画
-
建ぺい率
70%
容積率
160.00%
現況
居住中
引渡し
相談
取引態様
専任媒介
駐車場
空有
接道
公道:北東側 幅員約4m
公道:南東側 幅員約4m
インフラ
特徴・設備
電気:東京電力(他の小売電気事業者選択も可能です)
ガス:都市ガス(オール電化のため現在未使用)
水道:公営水道
汚水・雑排水:浄化槽
雨水:側溝
特記事項

情報更新日

情報更新日:2026-04-16  次回情報更新予定日:2026-04-30

お問合せ

大和ハウス工業株式会社静岡支店沼津営業所

大和ハウス工業株式会社静岡支店沼津営業所

TEL: 0120-019-854

FAX:

定休日:水・日・祝日

〒410-0053 沼津市寿町5番7号

免許番号:国土交通大臣(16)第245号

(公社)静岡県宅地建物取引業協会会員 東海不動産公正取引協議会加盟

お電話でのお問合せ

0120-019-854
物件番号:31403 お問合せの際に物件番号をお伝えください
更に詳しい物件情報はコチラ ※物件情報を取り扱う会社のサイトへ移動します。
AreaPDFバナーClose AreaPDFバナー