鹿児島県薩摩川内市御陵下町

鹿児島県薩摩川内市御陵下町 [ 周辺地図 ]
  • 肥薩おれんじ鉄道「上川内」駅から徒歩9分
4,625.6万円
建物価格 3,691.6万円 / 土地価格 934万円
【フラット35】S 金利プランA適合物件[詳細説明

【フラット35】S 金利プランA適合物件 の詳細説明

民間金融機関と住宅金融支援機構が提供する最長35年の全期間固定金利住宅ローン
「フラット35」の技術基準に適合している住宅で且つ、更に省エネルギー性、耐震性など質の高い住宅として「フラット35S」金利Aプラン技術基準に適合。
借入金利が当初10年間、年0.25%引下げになります。「スムストックで手続簡素化」対象
※2019年12月現在

無駄のない動線で、暮らしやすさを重視した間取りです。
落ち着いた色合いで、周囲の街並みに馴染む外観です。
清潔感のあるシンプルな外観が魅力的な物件です。
お子様やペットの遊び場としてもぴったりな庭付き物件です。
清潔感のある玄関は、来客にも好印象です。
シンプルで落ち着いたデザインの玄関が魅力です。
使い勝手の良い収納が豊富で、物が多くてもスッキリ片付けられます。
ゆったりとくつろげる、明るく開放的なリビング空間です。
室内にたっぷりと光が差し込む、快適なリビングです。
使い方に柔軟性があり、個室としても趣味の部屋としても利用可能です。
シンプルで使いやすい設計のキッチン。毎日の料理が快適に。
広々としたキッチンで、家族みんなで料理を楽しめます。
広々とした収納スペースがあり、日用品をすっきり整理できます。
内覧希望の方はお問い合わせください。
使い方に柔軟性があり、個室としても趣味の部屋としても利用可能です。
仕事や趣味のスペースとしても活用できる、多用途に使える部屋。
シンプルで温かみのあるデザインで、ゆったりと過ごせます。
内覧希望の方はお問い合わせください。
各部屋に収納が充実しており、整理整頓がしやすい設計です。
シンプルで清潔感のある洗面所で、毎日の生活が快適に。
清潔感のあるシンプルで使いやすいトイレです。
使い勝手の良い洗面台で、朝の準備もスムーズにこなせます。
大きな鏡付きの洗面台で、身支度がしやすい設計です。
使い勝手の良い収納が豊富で、物が多くてもスッキリ片付けられます。
広めの浴槽で、リラックスしたひとときをお過ごしいただけます。
ゆったりとした広さで、毎日のバスタイムを心地よくお楽しみいただけます。
高効率な空調システムで、季節を問わず快適な室内環境を実現しています。
静音設計で、心地よい環境を損なわず快適な空調を提供します。
発電設備と連携したエネルギーマネジメントで、光熱費の節約にも貢献します。
収納スペースが豊富で、調理器具や食材もスッキリ片付きます。
シンプルで使いやすい設計のキッチン。毎日の料理が快適に。
高効率の温水設備で、安定したお湯の供給と省エネ効果を両立しています。
セキュリティ面も安心です。
広々としたトイレ空間で、圧迫感を感じることなく快適に使用できます。
開放感たっぷりの眺望で、毎日が特別なひとときに感じられます。
周囲の自然が一望でき、穏やかな時間を楽しめる眺望です。
都市の美しい夜景を眺めながら、落ち着いた時間を過ごせます。
車通りが少なく、静かで安心して暮らせる環境です。
各部屋がしっかり確保された、使い勝手の良いレイアウト。
開放感たっぷりの眺望で、毎日が特別なひとときに感じられます。
川内すわこども園まで徒歩10分(約750m)。忙しい朝もスムーズに送り迎えができて助かります。
可愛まで徒歩15分(約1200m)。小さなお子さまの通学も安心の距離です。
川内北まで徒歩19分(約1500m)。通学にも安心な距離で、子育て世代に人気のエリアです。
徒歩圏内に病院があり、日々の健康管理や急な体調不良にも安心です。
地域に根ざした医療施設が近く、通院や検診も便利な立地です。
日常の生活用品から大型の資材まで揃う、便利なホームセンターが近くにあります。
近隣に大型ショッピングセンターがあり、毎日の買い物も休日のショッピングも快適です。
セブンイレブン薩摩川内大小路店まで徒歩19分(約1500m)。24時間営業で、夜遅くの買い物も安心です。
徒歩圏内の郵便局は、日常の郵便物やATM利用にも安心です。
近隣に銀行支店があり、日常の取引やATM利用に便利です。
緑豊かな泰平寺公園まで徒歩24分(約1900m)。家族でのお出かけや運動にもおすすめです。
薩摩川内市役所は地域に根ざした施設で、生活に必要なサポートが充実しています。

お問合せ

三井ホーム鹿児島株式会社 三井ホーム鹿児島株式会社 定休日:毎週水曜日、日曜日、祝日

お電話でのお問合せ

物件番号:8783866 お問合せの際に物件番号をお伝えください

PRポイント

成長が楽しみなロケーションの鹿児島県薩摩川内市御陵下町のスムストック認定住宅はいかがでしょうか。整った街並みが魅力の分譲地内で、統一感ある美しい景観が楽しめます。明るい室内はいつまでも居たくなる、陽だまり空間です。モニター付きインターフォンで、玄関先での宅配のやり取りもスムーズです。収納付きの独立洗面台です。食料品の買い出しも安心、スーパーのニシムタ上川内店まで850mの便利な立地です。収納力が魅力のWIC付きで、暮らしにゆとりが生まれます。天井高2.5m以上の開放感あふれる室内でお寛ぎください。生活動線に配慮された無駄のない5SLDKの間取りで、毎日の暮らしが快適に。10坪を超える庭で、お子様やペットがのびのびと遊べる快適な暮らしが実現できます。上質な暮らしの舞台。閑静な住宅街が豊かな人生を育みます。浴室は1坪以上あるので、入浴もゆとりたっぷりで快適です。環境や家計にも優しい太陽光発電システム搭載。万が一の災害時にも活躍します。セブンイレブン薩摩川内大小路店まで1500mで、時間を問わず生活に役立ちます。視認性が高く、土地の価値も向上。

三井ホーム鹿児島株式会社

担当:加治屋

広々とした延床面積約42.51坪の平家住宅。更に外人バスケットボール選手でも屈まずに暮らせる天井高2.5m以上の居室空間だから、部屋にこもりっきりでものびのびと体操できます。

基本情報

商品名
スムストック御陵下町
間取り内訳
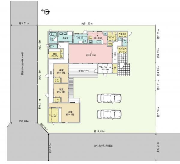
5SLDK  
建物面積
140.53 m²(登記)
土地面積
430.38 m²(登記)
私道負担
-
土地権利
所有権
構造・階建
木造 ・1階建
築年月
2022 年7月
用途地域
第一種中高層住居専用地域
用途地域2
都市計画
非線引き区域
建ぺい率
60%
容積率
200.00%
現況
空家
引渡し
要相談
取引態様
専任媒介
駐車場
駐車場:有、車庫区分:カーポート、台数:4台
接道
接道1 種別:公道、方向:西、幅員:5.00m
接道2 種別:公道、方向:北、幅員:5.00m
インフラ
ガス:LPG/水道:公営水道/汚水:個別浄化槽/雑排水:浄化槽
特徴・設備
特記事項

メンテナンス情報

実施済定期点検・診断(年目)

1
2
5
10
20
30
40
50
60

周辺環境

可愛小学校 距離:1200m
川内北中学校 距離:1500m
セブンイレブン薩摩川内大小路店 距離:1500m
ニシムタ上川内店 距離:850m
ありむら内科クリニック 距離:1200m
今井歯科医院 距離:1200m
薩摩川内市役所 距離:2900m
泰平寺公園 距離:1900m
川内すわこども園 距離:750m

情報更新日

情報更新日:2026-05-16  次回情報更新予定日:2026-05-30

お問合せ

三井ホーム鹿児島株式会社

三井ホーム鹿児島株式会社

TEL: 099-223-6131

FAX:099-223-4160

定休日:毎週水曜日、日曜日、祝日

〒892-0846 鹿児島県鹿児島市加治屋町12-7 甲南アセット鹿児島加治屋町ビル1階

免許番号:鹿児島県知事(3)第5794号

(公社)鹿児島県宅地建物取引業協会会員 (一社)優良ストック住宅推進協議会加盟   (一社)九州不動産公正取引協議会加盟

お電話でのお問合せ

099-223-6131
物件番号:8783866 お問合せの際に物件番号をお伝えください
AreaPDFバナーClose AreaPDFバナー