東松山市
春日部市
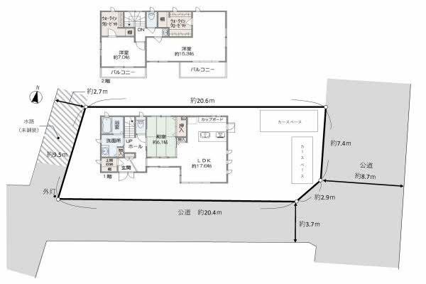
春日部市南2丁目3873番1
-
ハウス
メーカー 
- 販売価格
-
4,480万円建物価格 2,317万円 / 土地価格 2,163万円
- 交通
-
- 東武伊勢崎・大師線 東武鉄道野田線「春日部」駅より徒歩17分(1300m)
- 東武伊勢崎・大師線「一ノ割」駅より徒歩18分(1400m)
- 土地面積
- 200.73m²
- 間取り
- 間取:3LDK 間取詳細:3LDK+2WIC
- 建物面積
- 122.07m²
- 築年月
- 2010年11 月
- 物件PR
- ◎積水ハウス施工 ◎オール電化 ◎長期優良住宅
◎南向きバルコニー ◎全窓ペアガラス
◎カースペース2台分有 ◎太陽光2.96kw搭載
◎令和2年12月白蟻防除工事施工済 ◎住宅性能評価書有
上尾市
蕨市
新座市
八潮市
坂戸市
坂戸市にっさい花みず木2丁目1番3
-
ハウス
メーカー 
- 販売価格
-
2,990万円建物価格 1,790万円 / 土地価格 1,200万円
【フラット35】 適合物件
- 交通
-
- 東武鉄道東上線「北坂戸」駅 バス15分「金田南停」徒歩2分(160m)
- 土地面積
- 171.25m²
- 間取り
- 間取:3LDK+S 間取詳細:3LDK+S(納戸)
- 建物面積
- 120.86m²
- 築年月
- 2014年10 月
- 物件PR
- ◆太陽光発電システム(6.6kw)
◆約4.9帖の小屋裏収納
■積水ハウス株式会社施工のスムストック
■積水ハウス分譲地内
■オール電化住宅(月平均約1万円売電しております。)
■軽量鉄骨造
■電動シャッター
■LDK床暖房
■カースペース3台有
■2階洋室間仕切追加により間取り変更可(※工事費用が別途必要、買主負担となります。)
白岡市
白岡市新白岡5丁目3番15
-
ハウス
メーカー 
- 販売価格
-
5,780万円建物価格 3,000万円 / 土地価格 2,780万円
【フラット35】 適合物件
- 交通
-
- JR東北本線 湘南新宿ライン宇須「新白岡」駅より徒歩4分(300m)
- 土地面積
- 162.89m²
- 間取り
- 間取:3LDK 間取詳細:3LDK+WIC
- 建物面積
- 99.50m²
- 築年月
- 2020年11 月
- 物件PR
- ◆積水ハウス施工のスムストック◆
○JR湘南新宿ライン宇都宮線「新白岡」駅 徒歩約4分!
○令和2年11月築!
○駐車場2台分あり!(車種による)
■瓦一体型太陽光発電システム4.823kw搭載
■積水ハウス株式会社保証:新築時から30年継承可能
■長期優良住宅
■ZEH仕様住宅
■約20.4帖のLDK
■陶版外壁ベルバーン採用
このマークのある物件は、安心R住宅です。
安心R住宅とは、耐震性等国土交通省が定めた要件に適合した既存住宅のことです。
※詳細は、一般社団法人 優良ストック住宅推進協議会までお問合せください。



































