新潟県
長岡市前田2丁目
-
ハウス
メーカー 
- 販売価格
-
4,200万円建物価格 2,160万円 / 土地価格 2,040万円
【フラット35】S 金利プランB適合物件
- 交通
-
- JR信越本線「長岡」駅からバス9分「土合口」から徒歩4分
- 土地面積
- 396.70m²
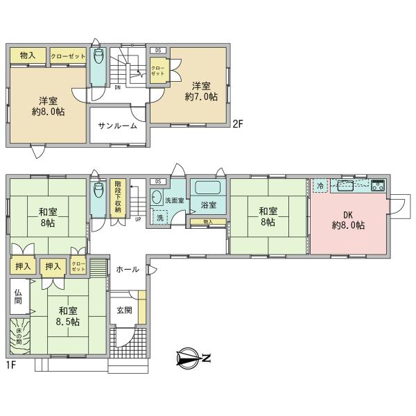
- 間取り
- 5SLDK
- 建物面積
- 345.29m²
- 築年月
- 1999年11 月
- 物件PR
- □快適性と安全性、安心感を贈る住まい
三井ホーム独自の2×4工法は、高い耐震性と気密性を誇り、建物の変形や倒壊を防ぎ、高気密高断熱で外気の影響を受けにくい、省エネルギーの建物です。
□各所に豊富な収納
各洋室ウォークインクローゼット・納戸・クローゼット・物入、シューズクローゼット・階段下収納
□日当たり良好、南西角地の好立地
大きな窓で日中明るく
□趣味を楽しめる
… 続きを見る
石川県
長野県
このマークのある物件は、安心R住宅です。
安心R住宅とは、耐震性等国土交通省が定めた要件に適合した既存住宅のことです。
※詳細は、一般社団法人 優良ストック住宅推進協議会までお問合せください。


























