藤枝市
藤枝市岡部町三輪
-
ハウス
メーカー 
- 販売価格
-
1,880万円建物価格 687万円 / 土地価格 1,193万円
- 交通
-
- 東海道本線「焼津」駅からバス11分「三輪神社入口」から徒歩3分
- 土地面積
- 138.11m²
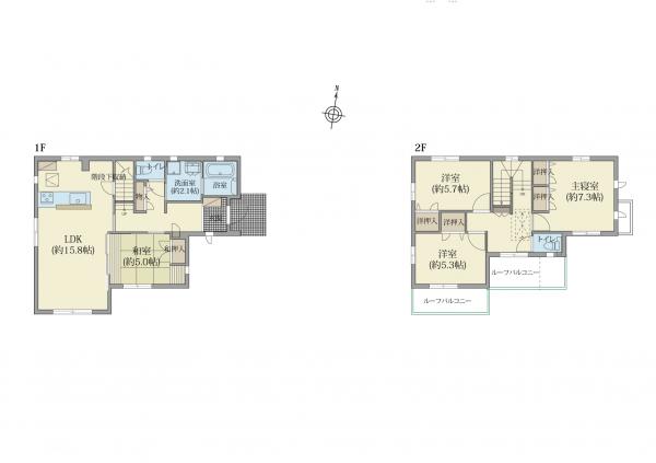
- 間取り
- 4LDK
- 建物面積
- 104.67m²
- 築年月
- 2009年9 月
- 物件PR
- トヨタホーム(鉄骨ラーメン構造)の中古戸建
〇まもりすまい既存住宅保険付保予定
〇トヨタホームの保証引継げます(建物検査後)
〇太陽光発電 2.8KW
〇2024年10月外壁塗塗替
〇小屋裏収納
〇オール電化住宅
〇IHクッキングヒーター、食洗機付システムキッチン
〇2階ホール前バルコニー、屋根あり
〇玄関脇に自転車置き場
〇ウッドデッキ
〇カースペース2台可(車種による)
このマークのある物件は、安心R住宅です。
安心R住宅とは、耐震性等国土交通省が定めた要件に適合した既存住宅のことです。
※詳細は、一般社団法人 優良ストック住宅推進協議会までお問合せください。















