神奈川県
横浜市青葉区あざみ野3丁目14番31
-
ハウス
メーカー 
- 販売価格
-
2
億
800万円建物価格 5,591万円 / 土地価格 1億
5,209万円【フラット35】S 金利プランA適合物件
- 交通
-
- 東急田園都市線 横浜市ブルーライン「あざみ野」駅より徒歩18分(1400m)
- 東急田園都市線 横浜市ブルーライン「あざみ野」駅より徒歩19分(1450m)
- 土地面積
- 309.71m²
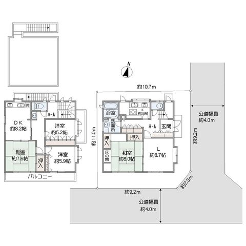
- 間取り
- 間取:4LDK+S 間取詳細:4LDK+S(納戸)+WIC
- 建物面積
- 259.49m²
- 築年月
- 2008年7 月
- 物件PR
- ◆間取り4LDK+S(納戸)+WIC
◆南東角地
◆二沿線利用可能!
横浜市営地下鉄ブルーライン「あざみ野」駅 徒歩18分
東急田園都市線「あざみ野」駅 徒歩19分
◆LDKは約39.4帖
◆LDK・1階ホールに床暖房付きです♪
◆納戸・WIC・シューズクローゼット・小屋裏収納有り
◆ビルトインガレージ・地下車庫付き!3台分駐車場可能(車種による)
◆システムキ… 続きを見る
相模原市中央区青葉3丁目3027番74
-
ハウス
メーカー 
- 販売価格
-
5,680万円建物価格 3,728万円 / 土地価格 1,952万円
【フラット35】 適合物件
- 交通
-
- JR横浜線「淵野辺」駅 バス13分「和泉短大前停」徒歩7分(560m)
- JR横浜線「相模原」駅 バス21分「和泉短大前停」徒歩7分(560m)
- 小田急電鉄小田原線 小田急電鉄江ノ島線「相模大野」駅 バス24分「和泉短大前停」徒歩7分(560m)
- 土地面積
- 166.29m²
- 間取り
- 間取:3LDK 間取詳細:3LDK+畳コーナー+防音室
- 建物面積
- 110.50m²
- 築年月
- 2021年9 月
- 物件PR
- 【積水ハウス施工】相模原市中央区青葉3丁目スムストック
■積水ハウス施工 令和3年9月築
SHAWOOD(木造)【グラヴィス ベルサ】
■JR横浜線「淵野辺」駅 バス乗車13分
「和泉短大前」停 徒歩7分
JR横浜線「相模原」駅 バス乗車21分
「和泉短大前」停 徒歩7分
小田急小田原線・小田急江ノ島線「相模大野」駅
バス乗車24分 「和泉短大前」停 … 続きを見る
平塚市東八幡4丁目22-12
-
ハウス
メーカー 
- 販売価格
-
3,080万円建物価格 1,780万円 / 土地価格 1,300万円
【フラット35】 適合物件
- 交通
-
- 湘南新宿ライン高海 JR東海道本線「平塚」駅 バス10分「四ノ宮停」徒歩3分(240m)
- 土地面積
- 117.76m²
- 間取り
- 間取:3LDK+S 間取詳細:3LDK+WIC
- 建物面積
- 97.35m²
- 築年月
- 2014年9 月
- 物件PR
- ☆積水ハウス(株)施工~軽量鉄骨造2階建~
☆土地面積:117.76m2(約35.6坪)、建物面積:97.35m2(約29.4坪)
☆平成26年9月建築 間取り3LDK+WIC
☆太陽光3.8kw搭載
\スムストックのおすすめポイント/
(1)「新耐震基準」レベルの耐震性を保持しています。
(2)新築時~現在に至るまでの住宅履歴(点検・補修)を管理・蓄積しています。
… 続きを見る
小田原市南鴨宮1丁目7番1-91号
-
ハウス
メーカー 
- 販売価格
-
2,980万円建物価格 618万円 / 土地価格 2,362万円
- 交通
-
- 湘南新宿ライン高海 JR東海道本線「鴨宮」駅より徒歩13分(1020m)
- 土地面積
- 150.34m²
- 間取り
- 間取:4LDK+S 間取詳細:4LDK+S(納戸)
- 建物面積
- 120.42m²
- 築年月
- 1997年8 月
- 物件PR
- 小田原市南鴨宮一丁目スムストック《積水ハウス施工》
◇平成9年8月築 間取り 4LDK+S(納戸)
◇積水ハウス(株)旧開発分譲地
◇区画整然とした街並み
◇カースペース2台可(※車種による)
~是非一度、現地をご見学ください~
\スムストックのおすすめポイント/
(1)「新耐震基準」レベルの耐震性を保持しています。
(2)新築時~現在に至るまでの住宅履歴(… 続きを見る
三浦市初声町下宮田1079ー141
-
ハウス
メーカー 
- 販売価格
-
4,980万円建物価格 3,475万円 / 土地価格 1,505万円
【フラット35】 適合物件
- 交通
-
- 京急久里浜線「三崎口」駅より徒歩11分(870m)
- 土地面積
- 231.08m²
- 間取り
- 間取:4LDK 間取詳細:4LDK+2WIC+ロフト
- 建物面積
- 148.16m²
- 築年月
- 2014年3 月
- 物件PR
- ☆積水ハウス(株)施工の軽量鉄骨造2階建
☆京急ニュータウン三浦海岸分譲地内
☆オール電化住宅
太陽光発電システム・エネファームあり
☆LD上部吹き抜けの為、開放感があります
☆約6.5帖のロフトあり
☆LD床暖房あり
☆2階洋室を仕切り、5LDKとしても利用可能
このマークのある物件は、安心R住宅です。
安心R住宅とは、耐震性等国土交通省が定めた要件に適合した既存住宅のことです。
※詳細は、一般社団法人 優良ストック住宅推進協議会までお問合せください。



















































