福岡県
北九州市若松区塩屋4丁目
-
ハウス
メーカー 
- 販売価格
-
4,100万円建物価格 2,850万円 / 土地価格 1,250万円
- 交通
-
- 筑豊本線「本城」駅 徒歩49分
- 土地面積
- 248.91m²
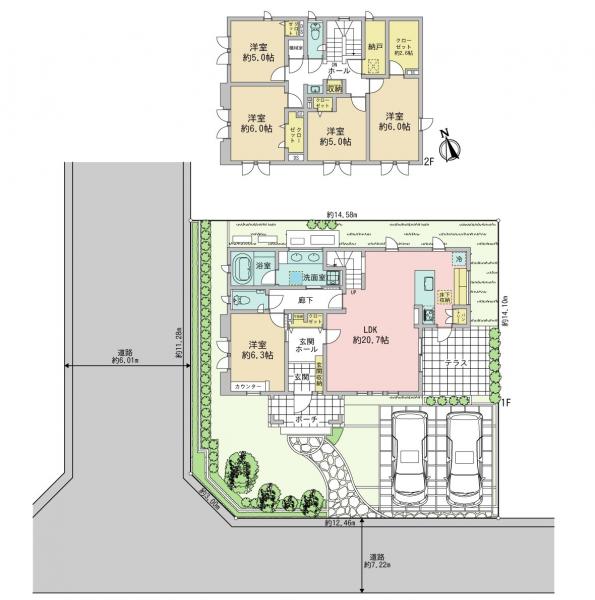
- 間取り
- 2SLDK
- 建物面積
- 97.11m²
- 築年月
- 2019年2 月
- 物件PR
- ■2019年竣工のヘーベルハウス
■2階の洋室は2部屋にできます
■キッチンは開放感のある”アイランドキッチン”です
■オール電化住宅
★ストックヘーベルハウスのおすすめポイント★
①60年以上耐用の構造躯体
②耐火・断熱・耐久・遮音・調湿に優れたALCコンクリート=ヘーベルを使用
③リフォームしやすい設計対応性
④明確なメンテナンスプログラム
⑤旭化成ホームズによる60年無償定期… 続きを見る
北九州市小倉北区篠崎5丁目
-
ハウス
メーカー 
- 販売価格
-
3,750万円建物価格 2,850万円 / 土地価格 900万円
- 交通
-
- 日豊本線「南小倉」駅 徒歩20分
- 土地面積
- 248.49m²
- 間取り
- 4LDK
- 建物面積
- 107.44m²
- 築年月
- 2018年7 月
- 物件PR
- ヘーベルハウスのスムストック住宅。
設備充実しています。
カースペース3台!
オール電化住宅。
太陽光発電搭載。
★ストックヘーベルハウスのおすすめポイント★
①60年以上耐用の構造躯体
②耐火・断熱・耐久・遮音・調湿に優れたALCコンクリート=ヘーベルを使用
③リフォームしやすい設計対応性
④明確なメンテナンスプログラム
⑤旭化成ホームズによる60年無償定期点検も継承
※宅… 続きを見る
北九州市小倉南区貫弥生が丘1丁目 12-7
-
ハウス
メーカー 
- 販売価格
-
1,950万円建物価格 994万円 / 土地価格 956万円
【フラット35】 適合物件
- 交通
-
- 日豊本線「朽網」駅徒歩33分
- 土地面積
- 241.99m²
- 間取り
- 5LDK
- 建物面積
- 127.20m²
- 築年月
- 2000年8 月
- 物件PR
- ◆新たな価値を生み出す「第3の住宅」
◇リノベーション工事実施
クロス交換、室内クリーニング
◇子育てのしやすい落ち着いた環境の中に佇む邸宅。
5LDK(39坪)のゆとりの広さ、1階に6畳の和室も隣接していますので同居も可能です。
南面4部屋・オール角部屋、カーポート、お庭の物置も充実しています
◇西鉄バスのターミナル「弥生が丘営業所」が100mですので… 続きを見る
北九州市小倉南区葛原3丁目22番6号
-
ハウス
メーカー 
- 販売価格
-
5,320万円建物価格 2,940万円 / 土地価格 2,380万円
- 交通
-
- JR日豊本線「安部山公園」駅より徒歩20分(1600m)
- 土地面積
- 203.28m²
- 間取り
- 間取:3LDK 間取詳細:3LDK
- 建物面積
- 120.92m²
- 築年月
- 2001年8 月
- 物件PR
- 積水ハウス施工スムストック!
【リフォーム内容】2025年11月
★1F:キッチン交換、トイレ交換・洗面台交換
ユニットバス交換
2F:トイレ交換
★間取り変更
1F:和室撤去LDK拡張、シューズクローク・パントリー新設
キッチン移設、カップボード新設、LDKエアコン新設
2F:納戸撤去洋室(1)拡張、ウォークインクローゼット新設
洋室(1)カ… 続きを見る
北九州市八幡東区帆柱2丁目
-
ハウス
メーカー 
- 販売価格
-
5,550万円建物価格 3,950万円 / 土地価格 1,600万円
- 土地面積
- 172.10m²
- 間取り
- 2LDK+S(納戸)
- 建物面積
- 115.39m²
- 築年月
- 2022年5 月
- 物件PR
- ◎セキスイハイム施工・軽量鉄骨造のお家◎
◎セキスイハイム30年保証・60年長期サポートシステム引継ぎ可能◎
◎太陽光発電システム5.76kw・蓄電池12kWh搭載◎
◎タイル外壁・ステンレス屋根でメンテナンス費用を削減します◎
◎駐車場3台分(車種による)◎
◎セキスイハイムの分譲地で日当たり風通し良好です◎
◎サンルーム・WIC・SICなど憧れの間取りです◎
北九州市八幡西区本城学研台3丁目
-
ハウス
メーカー 
- 販売価格
-
3,780万円建物価格 1,730万円 / 土地価格 2,050万円
- 交通
-
- 筑豊本線「二島」駅 バス12分北九州市営バス「払川」停歩6分
- 土地面積
- 212.79m²
- 間取り
- 3LDK
- 建物面積
- 110.37m²
- 築年月
- 2009年9 月
- 物件PR
- ■閑静な住宅街に建つヘーベルハウスのお住まいです
■吹抜けのあるリビングと屋上でガーデニングができる住まい
■太陽光発電2.88kwと蓄電池11.1kwを搭載!!
\ストックヘーベルハウスのおすすめポイント/
①60年以上耐用の構造躯体
②耐火・断熱・耐久・遮音・調湿に優れたALCコンクリート=ヘーベルを使用
③リフォームしやすい設計対応性
④明確なメンテナンスプログラム
⑤旭化成… 続きを見る
このマークのある物件は、安心R住宅です。
安心R住宅とは、耐震性等国土交通省が定めた要件に適合した既存住宅のことです。
※詳細は、一般社団法人 優良ストック住宅推進協議会までお問合せください。










































