鹿児島市
鹿児島市東坂元3丁目
-
ハウス
メーカー 
- 販売価格
-
1,950万円建物価格 1,251万円 / 土地価格 699万円
- 交通
-
- 日豊本線「鹿児島」駅車8分(3.2km)
- 鹿児島本線「鹿児島中央」駅車16分(6.3km)
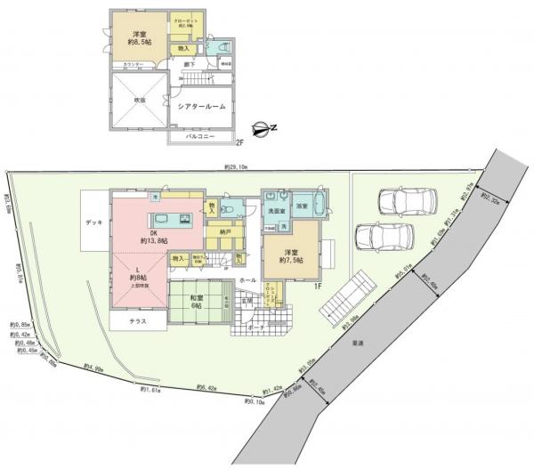
- 土地面積
- 150.40m²
- 間取り
- 4LDK
- 建物面積
- 110.11m²
- 築年月
- 2006年10 月
- 物件PR
- 【人気ある東坂元3丁目のセキスイハイム施工4LDK戸建】
・住宅団地内の立地です。
団地内は錦江湾や桜島が望める眺望が良いです。公園もありお散歩やリフレッシュができます。
・太陽光発電システム5.5kwm搭載です。地球に優しく、光熱費の削減も期待できます。
・24時間換気システムで快適な室内空気環境。
・全居室二面採光、収納も備わっています。
・駐車場は並列で2台分確保… 続きを見る
このマークのある物件は、安心R住宅です。
安心R住宅とは、耐震性等国土交通省が定めた要件に適合した既存住宅のことです。
※詳細は、一般社団法人 優良ストック住宅推進協議会までお問合せください。



















