世田谷区
世田谷区祖師谷5丁目
-
ハウス
メーカー 
- 販売価格
-
1
億
3,000万円建物価格 1,980万円 / 土地価格 1億
1,020万円
- 交通
-
- 小田急線・祖師ヶ谷大蔵駅 北口 徒歩14分
- 土地面積
- 144.44m²
- 間取り
- 4LDK+S(納戸)
- 建物面積
- 113.46m²
- 築年月
- 2011年9 月
- 物件PR
- ■住友林業施工
■4LDK+書斎(3.5帖)納戸(3.0帖)ロフト(2.5帖)小屋裏収納(5.0帖)
■太陽光発電システム・エコキュート
■LDに床暖房有
■南向きバルコニー(水栓付)
■キッチン:ミーレ社製食洗器・カップボード造付
■手洗器付トイレ(1階はタンクレス)
■2階洋室(7.5帖)は勾配天井
【 Life Information 】
認定こども園世田… 続きを見る
杉並区
杉並区梅里1丁目
-
ハウス
メーカー 
- 販売価格
-
9,300万円建物価格 2,360万円 / 土地価格 6,940万円
- 交通
-
- 東京メトロ丸ノ内線・東高円寺駅 1番口 徒歩7分
- 東京メトロ丸ノ内線・新高円寺駅 エレベータ出入口 徒歩7分
- 総武中央線・高円寺駅 南口 徒歩17分
- 土地面積
- 88.53m²
- 間取り
- 2LDK+S(納戸)
- 建物面積
- 108.52m²
- 築年月
- 2017年1 月
- 物件PR
- -物件概要-
○住友林業施工
○2017年1月築
○BF(ビックフレーム)構法採用
○建築時「建設性能評価」「長期優良住宅」認定
○1階に防音室(※表記は納戸)
○リビング・キッチン・3F洋室に床暖房
○外壁材は吹付(ジェイストンコート)採用
○浴室1618サイズ
○建物保証継承可能
-周辺環境-
○杉並第十小学校/徒歩8分
○高南中学校/徒歩10分
○ま… 続きを見る
練馬区
江戸川区
江戸川区南葛西6丁目
-
ハウス
メーカー 
- 販売価格
-
7,480万円建物価格 3,200万円 / 土地価格 4,280万円
- 交通
-
- 東京メトロ東西線・葛西駅 博物館口 徒歩22分
- 京葉線・葛西臨海公園駅 徒歩27分
- 東京メトロ東西線・西葛西駅 北口 徒歩35分
- 土地面積
- 70.06m²
- 間取り
- 1LDK
- 建物面積
- 70.33m²
- 築年月
- 2020年4 月
- 物件PR
- ~江戸川区南葛西6丁目住友林業施工 中古戸建て~
■2020年4月築 ■太陽光発電システム付き
■EV電気自動車充電スタンド付き ■駐車スペース有(※車種制限有)
~Facility~
■トイレ2か所
(ローシルエット一体型トイレ)
■3口ガスコンロ付システムキッチン ■食洗機付き
■1616バス ■浴室換気乾燥機付き
~Life Informatio… 続きを見る
八王子市
小金井市
小金井市貫井北町2丁目
-
ハウス
メーカー 
- 販売価格
-
1
億
4,800万円建物価格 2,660万円 / 土地価格 1億
2,140万円
- 交通
-
- 中央線・武蔵小金井駅 北口 徒歩10分
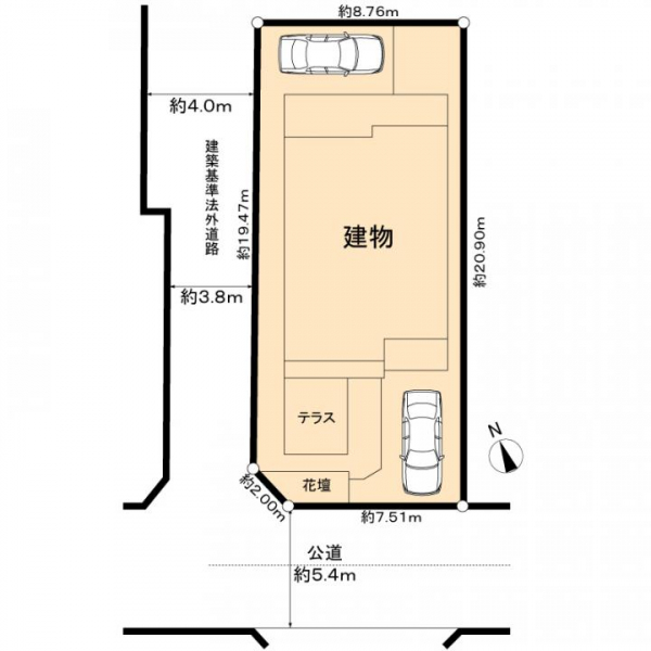
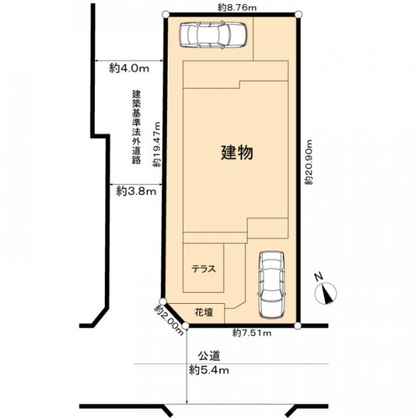
- 土地面積
- 183.79m²
- 間取り
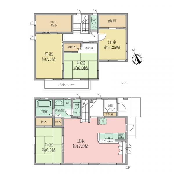
- 5LDK+S(納戸)
- 建物面積
- 145.56m²
- 築年月
- 2013年6 月
- 物件PR
- -物件概要-
○住友林業(株)施工
○2013年6月築
○「武蔵小金井駅」徒歩10分
〇土地55坪、建物44坪
○南側約5.4m公道×西側約3.8m通路(建築基準法外)
○駐車2台可(車種による)
○太陽光発電、蓄電池搭載
○間取り:5LDk+S(書斎)
○約19帖のリビングダイニング・キッチンに床暖房
○建物保証継承可能、長期優良住宅
〇1階は防犯Low-eガ… 続きを見る
小平市
日野市
日野市東豊田4丁目
-
ハウス
メーカー 
- 販売価格
-
7,580万円建物価格 4,480万円 / 土地価格 3,100万円
- 交通
-
- 中央線・豊田駅 北口 徒歩19分
- 京王線・南平駅 北口 徒歩22分
- 中央線・日野駅 徒歩23分
- 土地面積
- 103.68m²
- 間取り
- 3LDK+S(納戸)
- 建物面積
- 102.26m²
- 築年月
- 2023年9 月
- 物件PR
- ~おすすめポイント~
・住友林業(株)施工
・2023年9月築
・3LDK+S
・キッチンハウス製のキッチン
・ビッグフレーム構法
・エントランスクローク
・EV充電設備
・キッチン床暖房
・勾配天井
・太陽光発電システム
・維持保全計画書あり
~ライフインフォメーション~
・ミニコープ吹上店・・・約950m
・ローソン日野神明二丁目店・・・約250m
… 続きを見る
稲城市
稲城市長峰2丁目
-
ハウス
メーカー 
- 販売価格
-
5,680万円建物価格 880万円 / 土地価格 4,800万円
- 交通
-
- 相模原線・若葉台駅 /バス7分 長峰下車 徒歩2分
- 相模原線・稲城駅 南口 徒歩31分
- 多摩線・黒川駅 北口 徒歩31分
- 土地面積
- 182.53m²
- 間取り
- 4LDK+S(納戸)
- 建物面積
- 114.27m²
- 築年月
- 2012年11 月
- 物件PR
- 住友林業旧分譲】フォレストガーデン若葉台
建物価格1,380万円 土地価格4,300万円
~おすすめポイント~
■土地面積182.53平米の成形地■駐車スペース2台■公道2面接道■各居室収納■2.2帖のWIC■床下収納■パントリー■3.0帖の納戸■8.5帖の主寝室■8.28平米のルーフバルコニー
~周辺環境~
■小田急バス・京王バス バス停「長峰」約90m■長峰小学校… 続きを見る
あきる野市
あきる野市高尾
-
ハウス
メーカー 
- 販売価格
-
2,180万円建物価格 1,180万円 / 土地価格 1,000万円
- 交通
-
- 五日市線・武蔵五日市駅 南口 徒歩18分
- 五日市線・武蔵増戸駅 徒歩27分
- 土地面積
- 186.67m²
- 間取り
- 4LDK
- 建物面積
- 109.30m²
- 築年月
- 2010年1 月
- 物件PR
- 【住友林業施工】スムストック認定のお住まい
建物価格1,780万円/土地価格1,000万円
スムストック専用瑕疵保険付きの建物
■■スムストック認定物件の「3つの特長」 ■■
・新耐震基準レベルの耐震性を保持しています。
・50 年以上のメンテナンスプログラムにより、お住まいを長期にわたり守り続けています。
・新築時から実施した「点検・補修」の住宅履歴が保管されていま… 続きを見る
このマークのある物件は、安心R住宅です。
安心R住宅とは、耐震性等国土交通省が定めた要件に適合した既存住宅のことです。
※詳細は、一般社団法人 優良ストック住宅推進協議会までお問合せください。



















































