荒川区
荒川区西日暮里3丁目
-
ハウス
メーカー 
- 販売価格
-
2
億
4,500万円建物価格 2,726万円 / 土地価格 2億
1,774万円
- 交通
-
- JR山手線「西日暮里」駅から徒歩5分
- 京成本線「日暮里」駅から徒歩7分
- 東京メトロ千代田線「西日暮里」駅から徒歩7分
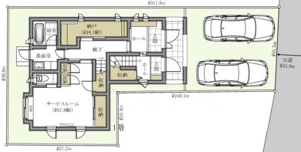
- 土地面積
- 123.17m²
- 間取り
- 1LLDDKK
- 建物面積
- 163.49m²
- 築年月
- 2012年11 月
- 物件PR
- ◆7線2駅 利用 可能
JR東北 本線・常磐線・京成線
「日暮里」駅徒歩7分
東京メトロ千代田線・舎人ライナー線
「西日暮里」駅徒歩7分
◆三井ホーム施工・高耐震のツーバイフォー工法
高性能屋根断熱構造パネル「DSP」採用
◆建物20年保証システム継承可(~ 2032年11月)
◆2世帯利用 可能
1・2階>1SLDK +ウォークインCL・納戸
… 続きを見る
このマークのある物件は、安心R住宅です。
安心R住宅とは、耐震性等国土交通省が定めた要件に適合した既存住宅のことです。
※詳細は、一般社団法人 優良ストック住宅推進協議会までお問合せください。





