清瀬市
清瀬市野塩1丁目
-
ハウス
メーカー 
- 販売価格
-
6,480万円建物価格 2,514万円 / 土地価格 3,966万円
- 交通
-
- 西武池袋・豊島線「秋津」駅 徒歩7分
- 武蔵野線「新秋津」駅 徒歩12分
- 土地面積
- 128.00m²
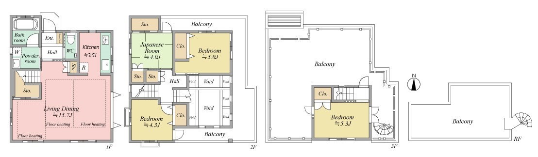
- 間取り
- 4LDK
- 建物面積
- 99.43m²
- 築年月
- 2002年3 月
- 物件PR
- ◆地震・火災に強い 旭化成ホームズ(株)施工のへーベルハウス◆
■ 2025年10月 リノベーション実施済
■ 2駅2路線利用可能
■ 屋上、吹き抜けのある間取り
■ 1低層エリアに建つ3階建
本物件建築時資料、メンテナンス資料を保管しております。
60年点検システム、継承できます。
このマークのある物件は、安心R住宅です。
安心R住宅とは、耐震性等国土交通省が定めた要件に適合した既存住宅のことです。
※詳細は、一般社団法人 優良ストック住宅推進協議会までお問合せください。





