三浦市
三浦市初声町下宮田1079ー141
-
ハウス
メーカー 
- 販売価格
-
4,980万円建物価格 3,475万円 / 土地価格 1,505万円
【フラット35】 適合物件
- 交通
-
- 京急久里浜線「三崎口」駅より徒歩11分(870m)
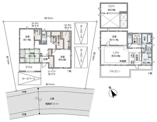
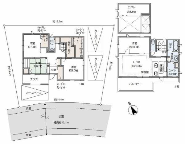
- 土地面積
- 231.08m²
- 間取り
- 間取:4LDK 間取詳細:4LDK+2WIC+ロフト
- 建物面積
- 148.16m²
- 築年月
- 2014年3 月
- 物件PR
- ☆積水ハウス(株)施工の軽量鉄骨造2階建
☆京急ニュータウン三浦海岸分譲地内
☆オール電化住宅
太陽光発電システム・エネファームあり
☆LD上部吹き抜けの為、開放感があります
☆約6.5帖のロフトあり
☆LD床暖房あり
☆2階洋室を仕切り、5LDKとしても利用可能
このマークのある物件は、安心R住宅です。
安心R住宅とは、耐震性等国土交通省が定めた要件に適合した既存住宅のことです。
※詳細は、一般社団法人 優良ストック住宅推進協議会までお問合せください。





