神戸市垂水区
神戸市垂水区小束山2丁目
-
ハウス
メーカー 
- 販売価格
-
4,590万円建物価格 2,000万円 / 土地価格 2,590万円
【フラット35】 適合物件
- 交通
-
- 神戸市西神山手線「学園都市」駅バス乗車10分、学園緑が丘停留所より徒歩4分
- 神戸市西神山手線「総合運動公園」駅徒歩24分
- 山陽本線「舞子」駅バス乗車28分、小束山6丁目停留所より徒歩15分
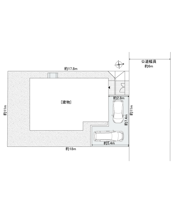
- 土地面積
- 195.84m²
- 間取り
- 5LDK
- 建物面積
- 123.79m²
- 築年月
- 1990年2 月
- 物件PR
- ★仲介手数料不要?(当社売主物件)
\セキスイハイムのリノベーション住宅/
2025年6月リフォーム工事完成いたしました!
●土地面積:195.84㎡(約59坪)床面積:123.79㎡(約37.4坪)
●太陽光発電システム6.3KW搭載済 家計に優しいすまいです
●南東向き・お庭あり・前面道路幅員約6mで明るく風通し良好です
●垂水ICまで車で約3.5km(7分)・遠… 続きを見る
神戸市北区
神戸市北区鈴蘭台東町7丁目
-
ハウス
メーカー 
- 販売価格
-
2,450万円建物価格 865万円 / 土地価格 1,585万円
- 交通
-
- 神戸電鉄有馬線「鈴蘭台」駅徒歩13分
- 土地面積
- 202.99m²
- 間取り
- 5LDK+S(納戸)
- 建物面積
- 135.10m²
- 築年月
- 2001年1 月
- 物件PR
- ◆鉄骨ボックスラーメン構造のセキスイハイム『パルフェ』
◆鉄骨ユニット構造で高い耐震性・耐火性能を有します。工場で生産するからこその精密さ、品質の高さ。
◆セキスイハイムの新築後無料60年長期サポートシステムの継承可能です。
~~~~~~~~~~~~~~~~~~~~~~~~~~~~~~~~~~~~~~~~~~~~~~~~~~~~~~~
セキスイハイムでは、鉄骨ラーメン構造の住… 続きを見る
神戸市西区
神戸市西区中野2丁目
-
ハウス
メーカー 
- 販売価格
-
2,680万円建物価格 300万円 / 土地価格 2,380万円
- 交通
-
- 山陽本線「西明石」駅バス乗車20分、中野2丁目南停留所より徒歩2分
- 山陽本線「大久保」駅車17分(6.5km)
- 山陽電気鉄道本線「山陽明石」駅車15分(6km)
- 土地面積
- 233.62m²
- 間取り
- 6LDK+S(納戸)
- 建物面積
- 172.42m²
- 築年月
- 1989年5 月
- 物件PR
- ◆鉄骨ボックスラーメン構造のセキスイハイム『パルフェ』
◆鉄骨ユニット構造で高い耐震性・耐火性能を有します。工場で生産するからこその精密さ、品質の高さ。
◆セキスイハイムの新築後無料60年長期サポートシステムの継承可能です。
~~~~~~~~~~~~~~~~~~~~~~~~~~~~~~~~~~~~~~~~~~~~~~~~~~~~~~~
セキスイハイムでは、鉄骨ラーメン構造の住… 続きを見る
神戸市西区樫野台1丁目
-
ハウス
メーカー 
- 販売価格
-
4,180万円建物価格 1,670万円 / 土地価格 2,510万円
【フラット35】 適合物件
- 交通
-
- 神戸市西神山手線「西神中央」駅バス乗車13分、樫野台小学校停留所より徒歩1分
- 土地面積
- 216.57m²
- 間取り
- 5LDK+S(納戸) + 2WIC
- 建物面積
- 133.21m²
- 築年月
- 1991年2 月
- 物件PR
- ★仲介手数料不要?(当社売主物件)
\セキスイハイムのリノベーション住宅/
リフォーム工事完工前ですが、現地をご見学ご希望の方はお気軽にお問い合わせください。
◆西神中央駅からバス約13分!西神中央駅にはスーパーや飲食店多数!帰り道にお買い物が可能です。
◆家族の暮らしやすさを考えた収納豊富な5LDK+S(納戸)+2WICの間取り設計
◆約18.2帖の広々としたLDKが… 続きを見る
尼崎市
尼崎市富松町2丁目
-
ハウス
メーカー 
- 販売価格
-
4,680万円建物価格 2,640万円 / 土地価格 2,040万円
【フラット35】S 金利プランB適合物件
- 交通
-
- 阪急電鉄神戸線「武庫之荘」駅徒歩13分
- 阪急電鉄神戸線「塚口」駅徒歩22分
- 東海道本線「立花」駅バス乗車4分、南武庫之荘2丁目停留所より徒歩8分
- 土地面積
- 94.35m²
- 間取り
- 3LDK
- 建物面積
- 91.19m²
- 築年月
- 2002年7 月
- 物件PR
- ★仲介手数料不要?(当社売主物件)
\セキスイハイムのリノベーション住宅/
●時を越えて続く価値を紡いでいく~セキスイハイムの第3の住宅『Beハイム』
●ALSOKセキュリティ導入
●瑕疵保険(5年)・設備保証(新調設備10年・その他2年)を付保いたします。
●耐震性・耐久性の高いセキスイハイム軽量鉄骨住宅に内装リノベーションを実施します!
●阪急電鉄神戸線「武庫之荘… 続きを見る
尼崎市東園田町3丁目
-
ハウス
メーカー 
- 販売価格
-
4,980万円建物価格 252万円 / 土地価格 4,728万円
- 交通
-
- 阪急電鉄神戸線「園田」駅徒歩14分
- 福知山線「塚口」駅バス乗車16分、東園田3丁目停留所より徒歩1分
- 土地面積
- 145.00m²
- 間取り
- 6LDK+S(納戸)
- 建物面積
- 149.97m²
- 築年月
- 1981年11 月
- 物件PR
- ◆阪急神戸線「園田」駅徒歩14分
◆鉄骨ボックスラーメン構造のセキスイハイム
◆鉄骨ユニット構造で高い耐震性・耐火性能を有します。工場で生産するからこその精密さ、品質の高さ。
◆セキスイハイムの新築後無料60年長期サポートシステムの継承可能です。
伊丹市
伊丹市山田1丁目
-
ハウス
メーカー 
- 販売価格
-
5,990万円建物価格 2,640万円 / 土地価格 3,350万円
- 交通
-
- 阪急電鉄伊丹線「伊丹」駅バス乗車5分、寺本東停留所より徒歩7分
- 福知山線「伊丹」駅バス乗車18分、寺本東停留所より徒歩7分
- 阪急電鉄神戸線「塚口」駅バス乗車19分、山田停留所より徒歩5分
- 土地面積
- 147.21m²
- 間取り
- 3LDK + 2ウォークインクローゼット
- 建物面積
- 102.97m²
- 築年月
- 1999年3 月
- 物件PR
- ★仲介手数料不要?(当社売主物件)
\セキスイハイムのリノベーション住宅/
リノベーション工事完了しました!
●土地面積:147.21㎡(約44.5坪)建物床面積:102.97㎡(約31坪)
●西・北・東の三方接道で、日当たり風通しが良好な立地です!
●物件東側には昆陽南公園が徒歩1分(約30m)の距離にございます
広場や遊具がありますので、お子様の遊び場にピッタリ… 続きを見る
三木市
三木市緑が丘町西3丁目
-
ハウス
メーカー 
- 販売価格
-
3,680万円建物価格 2,460万円 / 土地価格 1,220万円
【フラット35】S 金利プランB適合物件
- 交通
-
- 神戸電鉄粟生線「広野ゴルフ場前」駅徒歩10分
- 神戸電鉄粟生線「緑が丘」駅徒歩19分
- 神戸電鉄粟生線「志染」駅バス乗車12分、緑が丘西1丁目西停留所より徒歩5分
- 土地面積
- 197.24m²
- 間取り
- 4LDK+S(納戸) + DK+書斎
- 建物面積
- 153.54m²
- 築年月
- 1999年2 月
- 物件PR
- ★仲介手数料不要?(当社売主物件)
\セキスイハイムのリノベーション住宅/
リフォーム工事完工前ですが、現地をご見学ご希望の方はお気軽にお問い合わせください。
◆4LDDKK+S(納戸)+書斎の間取りプラン!
◆キッチン・浴室・洗面はそれぞれ2カ所、トイレは3カ所完備し、二世帯住宅や大家族でも快適にお過ごしいただける設備仕様です。
◆2階LDKは約22.2帖で広々空… 続きを見る
川西市
川西市大和西1丁目
-
ハウス
メーカー 
- 販売価格
-
4,850万円建物価格 2,260万円 / 土地価格 2,590万円
- 交通
-
- 能勢電鉄「畦野」駅徒歩6分
- 能勢電鉄「一の鳥居」駅徒歩13分
- 能勢電鉄「山下」駅徒歩18分
- 土地面積
- 335.64m²
- 間取り
- 6LDK + 納戸+2WIC
- 建物面積
- 179.74m²
- 築年月
- 1988年1 月
- 物件PR
- ★仲介手数料不要?(当社売主物件)
\セキスイハイムのリノベーション住宅/
2025年4月リノベーション工事完了!
●土地面積:355.64㎡(約107坪)床面積:179.74㎡(約54坪)
●北西角地・二面道路で明るく風通しの良いおうちです
●畦野駅まで徒歩6分の好立地/大阪・西宮方面へアクセス良好で通勤にも便利◎
川西能勢口駅(JR乗り換え可)まで乗車11分・西宮北… 続きを見る
三田市
三田市けやき台3丁目
-
ハウス
メーカー 
- 販売価格
-
3,480万円建物価格 685万円 / 土地価格 2,795万円
- 交通
-
- 神戸電鉄公園都市線「ウッディタウン中央」駅徒歩17分
- 福知山線「新三田」駅徒歩25分
- 福知山線「新三田」駅バス乗車11分、けやき台小学校前停留所より徒歩3分
- 土地面積
- 244.63m²
- 間取り
- 5LDK+S(納戸) + 納戸
- 建物面積
- 148.26m²
- 築年月
- 1993年9 月
- 物件PR
- 【南西北西の角地×5SSLDK】日当り良好なセキスイハイム物件♪
◆鉄骨ボックスラーメン構造のセキスイハイム『セラーノ』
◆鉄骨ユニット構造で高い耐震性・耐火性能を有します。工場で生産するからこその精密さ、品質の高さ。
◆土地:74坪 建物:44坪 ◆広々5SLDK+納戸
◆2017年6月 システムキッチン・ユニットバス・洗面台入替
◆セキスイハイムの新築後無料60年長期サ… 続きを見る
このマークのある物件は、安心R住宅です。
安心R住宅とは、耐震性等国土交通省が定めた要件に適合した既存住宅のことです。
※詳細は、一般社団法人 優良ストック住宅推進協議会までお問合せください。


















































